ГОСТ Р 55020-2012 Арматура трубопроводная. Задвижки шиберные для магистральных нефтепроводов. Общие технические условия
ГОСТ Р
Скачать ГОСТ в PDF или DOC бесплатно
Основная информация
Обозначение:
ГОСТ Р 55020-2012
Статус:
Отменен
Тип:
ГОСТ Р
Название русское:
Арматура трубопроводная. Задвижки шиберные для магистральных нефтепроводов. Общие технические условия
Название английское:
Pipeline valves. Knife gate valves for trunk pipelines. General specifications
Даты и сроки
Дата издания:
11-05-13
Дата введения в действие:
03-01-13
Дата завершения срока действия:
01-01-21
Применение и описание
Область и условия применения:
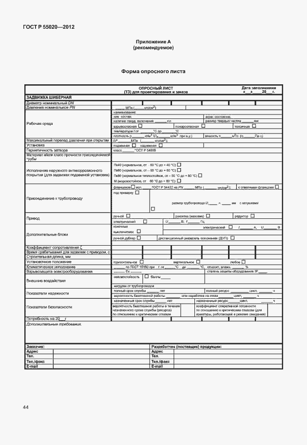
Настоящий стандарт распространяется на задвижки шиберные номинальных диаметров от DN 100 до DN 1200 на номинальное давление от PN 16 до PN 125 (от 1,6 до 12,5 МПа), предназначенные для эксплуатации на магистральных нефтепроводах, нефтепродуктопроводах, перекачивающих станциях и других объектах магистральных нефтепроводов и нефтепродуктопроводов. Стандарт может быть использован для подтверждения соответствия
Связи и замены
Заменяющий:
-
Описание стандарта
ГОСТ Р 55020-2012 Арматура трубопроводная. Задвижки шиберные для магистральных нефтепроводов. Общие технические условия
Страницы стандарта













































































