ГОСТ 28601.3-90 Система несущих конструкций серии 482,6 мм. Каркасы блочные и частичные вдвижные. Основные размеры
ГОСТ
Скачать ГОСТ в PDF или DOC бесплатно
Основная информация
Обозначение:
ГОСТ 28601.3-90
Статус:
Действует
Тип:
ГОСТ
Название русское:
Система несущих конструкций серии 482,6 мм. Каркасы блочные и частичные вдвижные. Основные размеры
Название английское:
System of bearing structures of the 482,6 mm series. Subracks and associated plug-in units. Main dimensions
Даты и сроки
Дата издания:
11-01-05
Дата введения в действие:
01-01-91
Дата завершения срока действия:
-
Применение и описание
Область и условия применения:
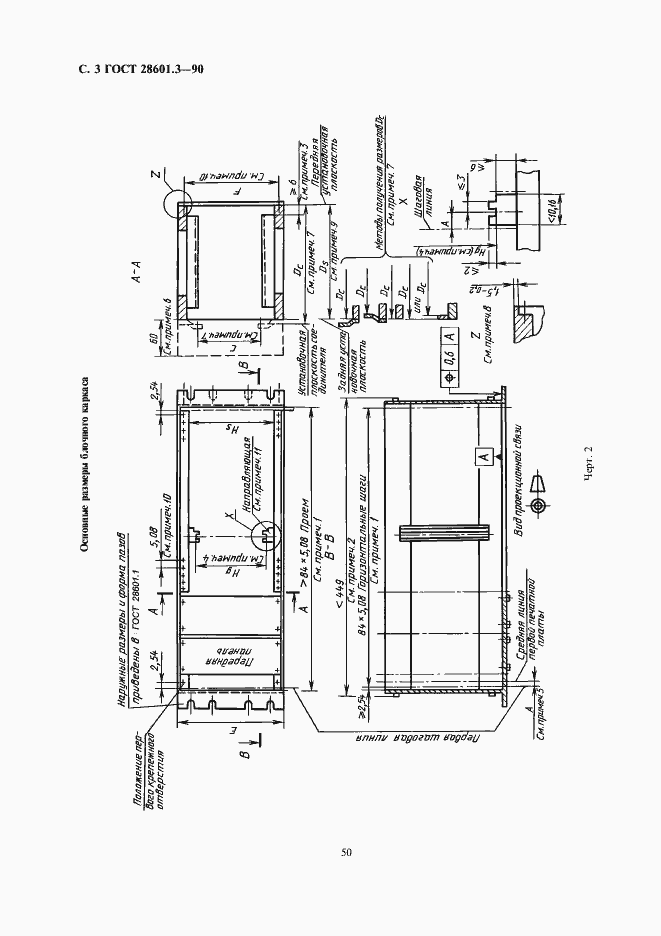
Настоящий стандарт устанавливает основные размеры модульного ряда блочных каркасов для их установки в оборудовании, кроме технических средств агрегатной системы вычислительной техники на перестраиваемых структурах, а также основные размеры совместимого ряда вдвижных частичных каркасов и печатных плат
Связи и замены
Заменяющий:
-
Взамен в части:
ГОСТ 26.204-83 в части блочных и вдвижных частичных каркасов
Описание стандарта
ГОСТ 28601.3-90 Система несущих конструкций серии 482,6 мм. Каркасы блочные и частичные вдвижные. Основные размеры
Страницы стандарта










