ГОСТ 26804-86 Ограждения дорожные металлические барьерного типа. Технические условия
ГОСТ
Скачать ГОСТ в PDF или DOC бесплатно
Основная информация
Обозначение:
ГОСТ 26804-86
Статус:
Действует
Тип:
ГОСТ
Название русское:
Ограждения дорожные металлические барьерного типа. Технические условия
Название английское:
Metal road safety barriers. Specifications
Даты и сроки
Дата издания:
10-01-05
Дата введения в действие:
01-01-87
Дата завершения срока действия:
11-01-13
Применение и описание
Область и условия применения:
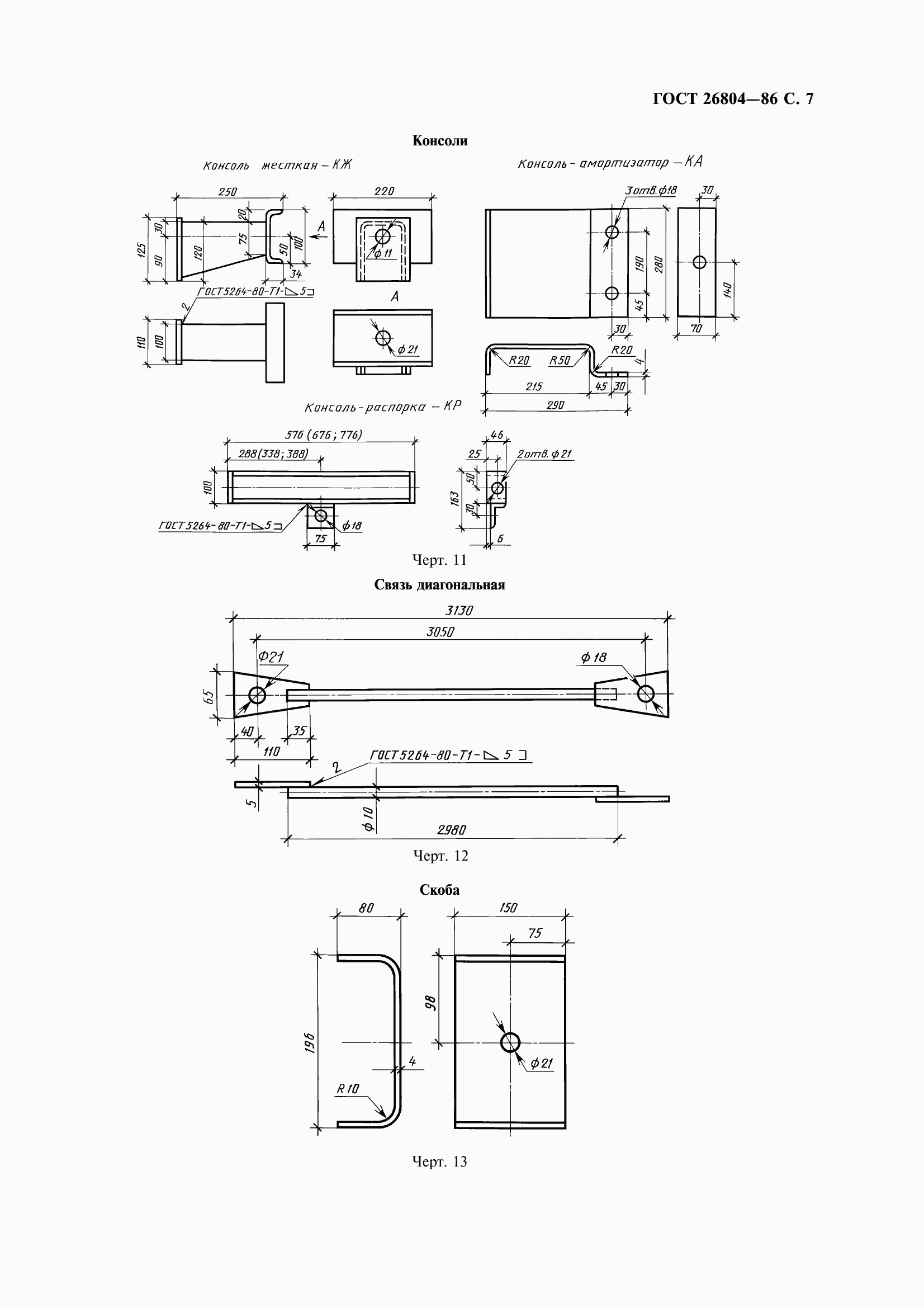
Настоящий стандарт распространяется на металлические боковые ограждения барьерного типа, предназначенные для автомобильных дорог общего пользования
Связи и замены
Заменяющий:
ГОСТ 26804-2012
Описание стандарта
ГОСТ 26804-86 Ограждения дорожные металлические барьерного типа. Технические условия
Страницы стандарта














