ГОСТ Р 50958-2022 Вагоны трамвайные. Технические требования для перевозки инвалидов
ГОСТ Р
Скачать ГОСТ в PDF или DOC бесплатно
Основная информация
Обозначение:
ГОСТ Р 50958-2022
Статус:
Действует
Тип:
ГОСТ Р
Название русское:
Вагоны трамвайные. Технические требования для перевозки инвалидов
Название английское:
Tram cars. Technical requirements for the transportation of disabled people
Даты и сроки
Дата издания:
11-22-22
Дата введения в действие:
01-01-23
Дата завершения срока действия:
-
Применение и описание
Область и условия применения:
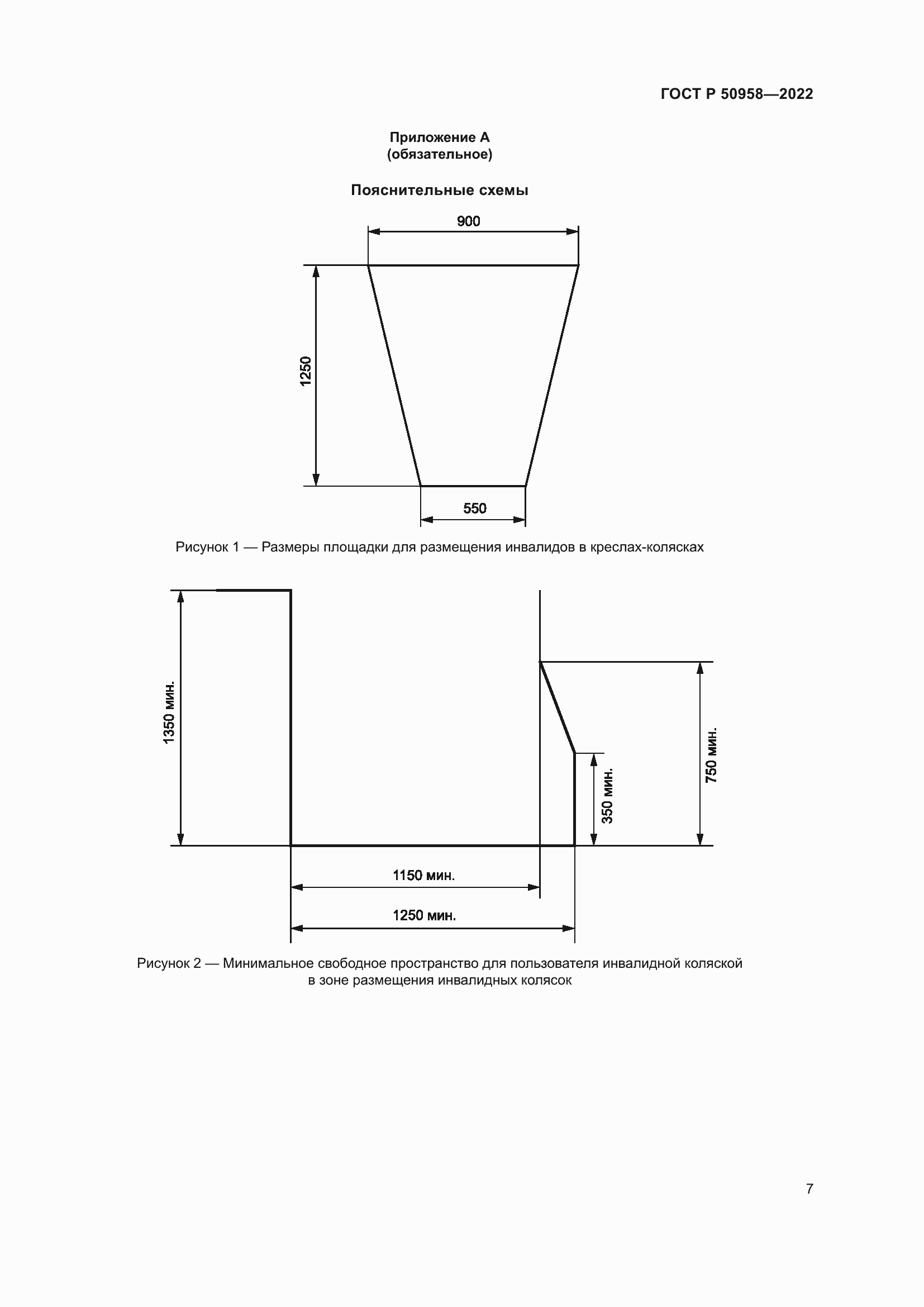
Настоящий стандарт распространяется на вагоны трамвайные, предназначенные для перевозки пассажиров, включая пассажиров-инвалидов, (далее – вагоны), на линиях городского электрифицированного транспорта шириной колеи 1000 мм, 1435 мм и 1524 (1520) мм с питанием от однопроводной контактной сети в соответствии с ГОСТ 6962. Стандарт устанавливает технические требования к конструкции, оборудованию, системам и устройствам вагонов, обеспечивающим доступность и безопасность их для пассажиров-инвалидов, в том числе в креслах-колясках. Технические требования, установленные настоящим стандартом, являются обязательными для пользователей
Связи и замены
Заменяющий:
-
Взамен:
ГОСТ Р 50958-96
Описание стандарта
ГОСТ Р 50958-2022 Вагоны трамвайные. Технические требования для перевозки инвалидов
Страницы стандарта











