ГОСТ Р 52916-2008 Упоры автосцепного устройства для грузовых и пассажирских вагонов. Общие технические условия
ГОСТ Р
Скачать ГОСТ в PDF или DOC бесплатно
Основная информация
Обозначение:
ГОСТ Р 52916-2008
Статус:
Отменен
Тип:
ГОСТ Р
Название русское:
Упоры автосцепного устройства для грузовых и пассажирских вагонов. Общие технические условия
Название английское:
Stops of automatic coupler equipment for freight and passenger cars. General specifications
Даты и сроки
Дата издания:
08-13-08
Дата введения в действие:
01-01-09
Дата завершения срока действия:
11-01-21
Применение и описание
Область и условия применения:
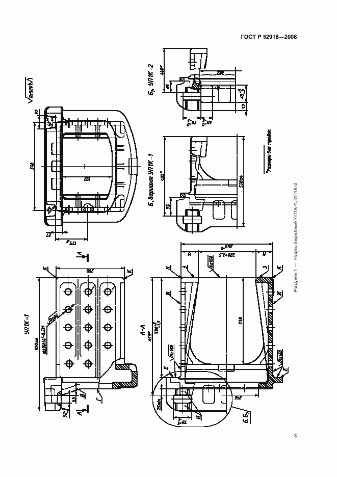
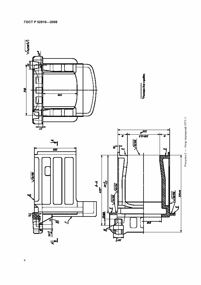
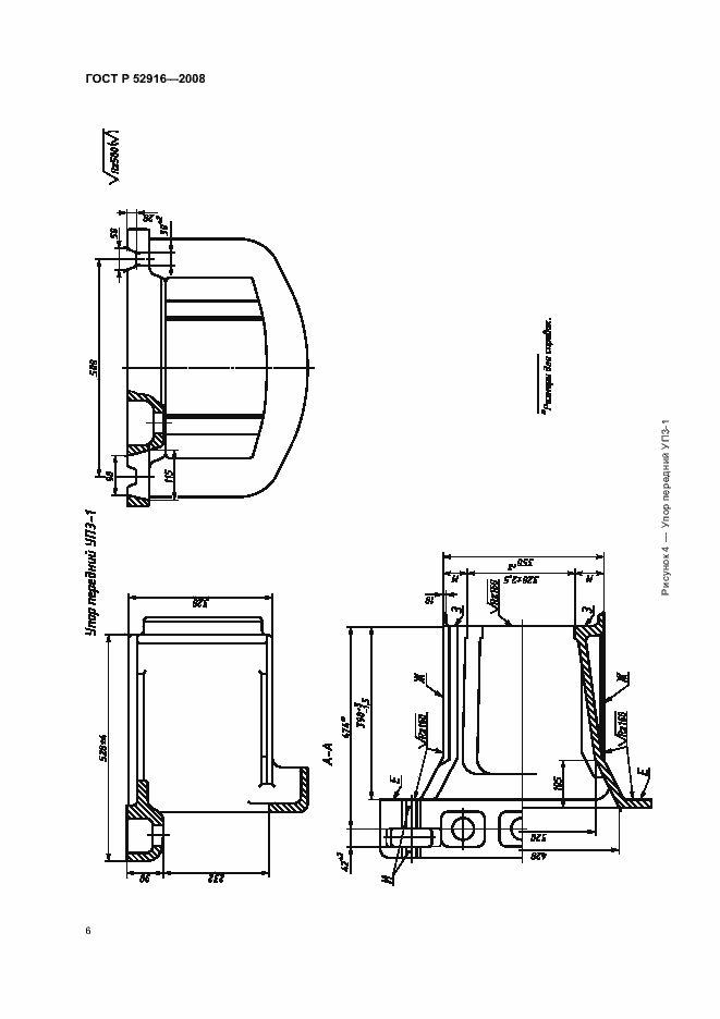
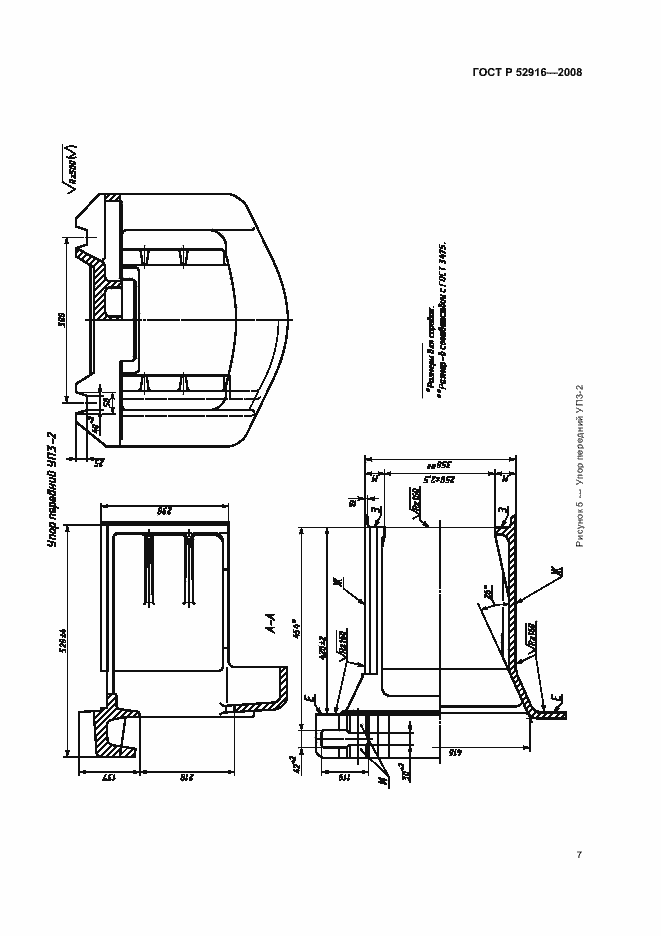
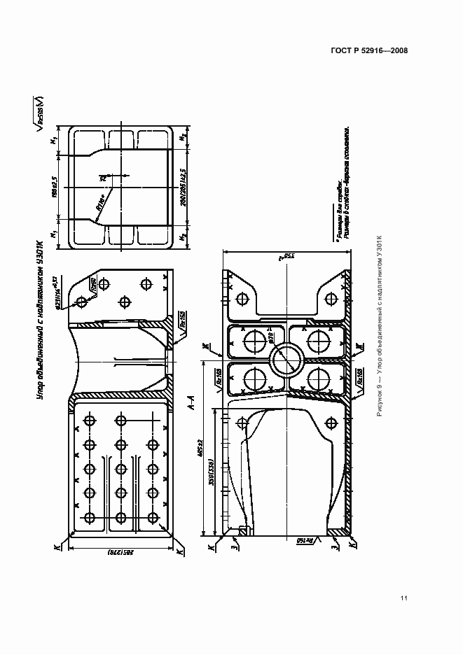
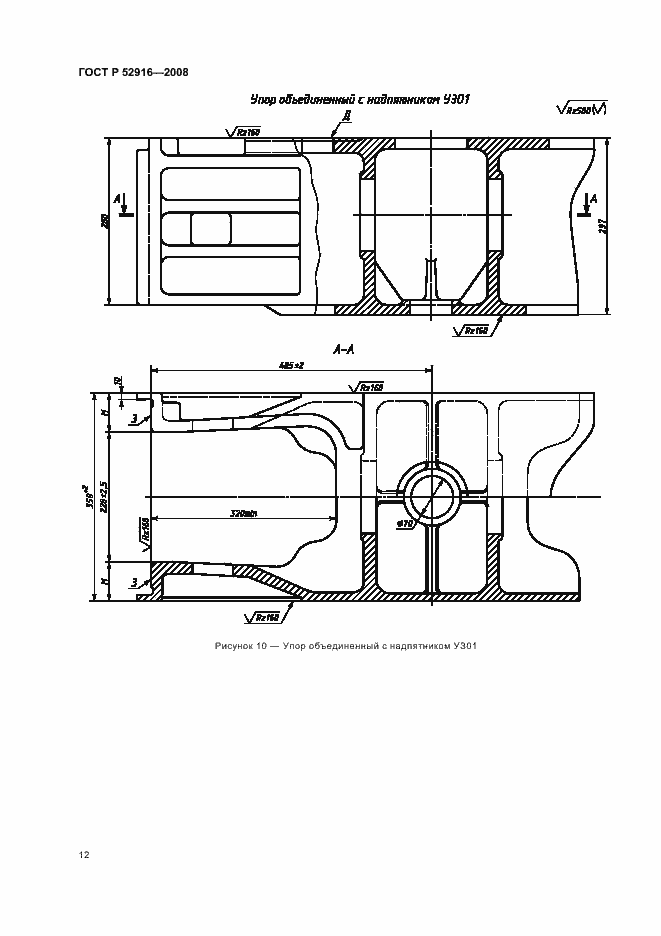
Настоящий стандарт распространяется на упоры автосцепного устройства для грузовых и пассажирских вагонов железных дорог колеи 1520 мм. Стандарт не распространяется на упоры автосцепного устройства восьмиосных вагонов, электро- и дизель-поездов и вагонов промышленного транспорта
Связи и замены
Заменяющий:
-
Описание стандарта
ГОСТ Р 52916-2008 Упоры автосцепного устройства для грузовых и пассажирских вагонов. Общие технические условия
Страницы стандарта



















