ГОСТ Р 8.835-2013 Государственная система обеспечения единства измерений. Устройства весоизмерительные автоматические. Часть 2. Форма протокола испытаний
ГОСТ Р
Скачать ГОСТ в PDF или DOC бесплатно
Основная информация
Обозначение:
ГОСТ Р 8.835-2013
Статус:
Действует
Тип:
ГОСТ Р
Название русское:
Государственная система обеспечения единства измерений. Устройства весоизмерительные автоматические. Часть 2. Форма протокола испытаний
Название английское:
State system for ensuring the uniformity of measurements. Automatic catchweighing instruments. Part 2. Test report format
Даты и сроки
Дата издания:
04-01-15
Дата введения в действие:
03-01-15
Дата завершения срока действия:
-
Применение и описание
Область и условия применения:
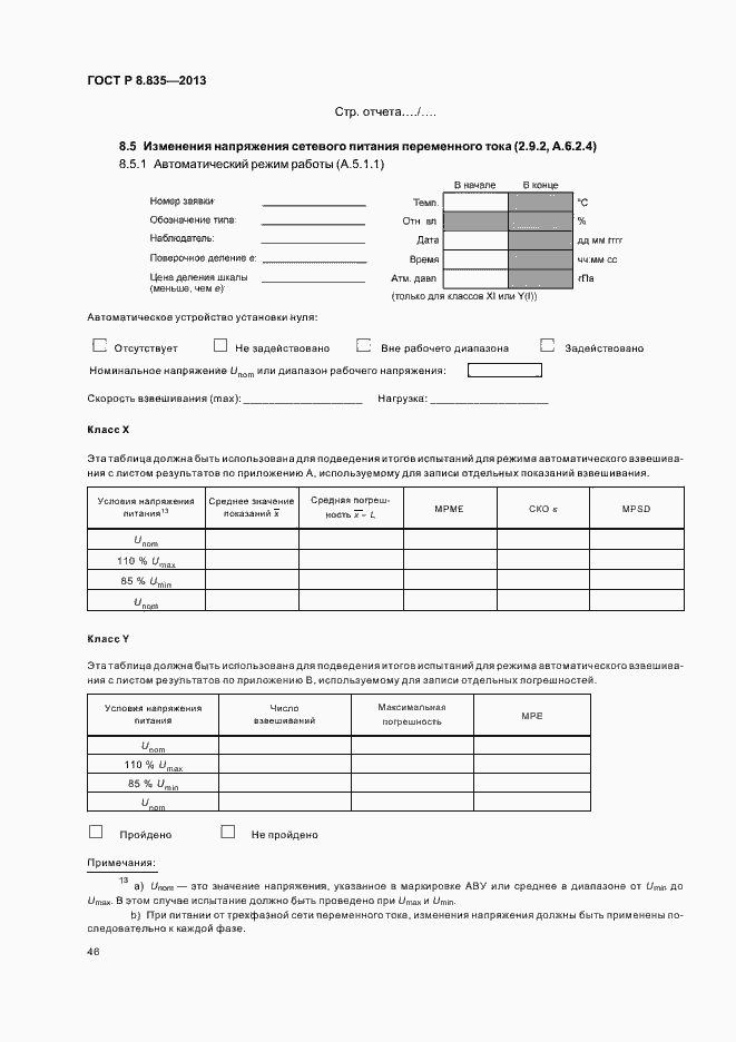
Настоящий стандарт распространяется на автоматические весоизмерительные устройства (АВУ) по OIML R 51-1:2006 «Автоматические весоизмерительные дозирующие устройства. Часть 1. Метрологические и технические требования. Испытания» (OIML R 51-1:2006 «Automatic catchweighing instruments. Part 1. Metrological and technical requirements - Tests») и устанавливает форму протокола испытаний АВУ для целей утверждения типа
Связи и замены
Заменяющий:
-
Описание стандарта
ГОСТ Р 8.835-2013 Государственная система обеспечения единства измерений. Устройства весоизмерительные автоматические. Часть 2. Форма протокола испытаний
Страницы стандарта








































































































