ГОСТ ИСО 16902-1-2006 Шум машин. Технический метод определения уровней звуковой мощности насосов гидроприводов по интенсивности звука
ГОСТ ИСО
Скачать ГОСТ в PDF или DOC бесплатно
Основная информация
Обозначение:
ГОСТ ИСО 16902-1-2006
Статус:
Действует
Тип:
ГОСТ ИСО
Название русское:
Шум машин. Технический метод определения уровней звуковой мощности насосов гидроприводов по интенсивности звука
Название английское:
Noise of machines. Engineering method for determination of the sound power levels of pumps using sound intensity techniques
Даты и сроки
Дата регистрации:
12-07-06
Дата издания:
09-10-07
Дата введения в действие:
10-01-07
Дата завершения срока действия:
-
Применение и описание
Область и условия применения:
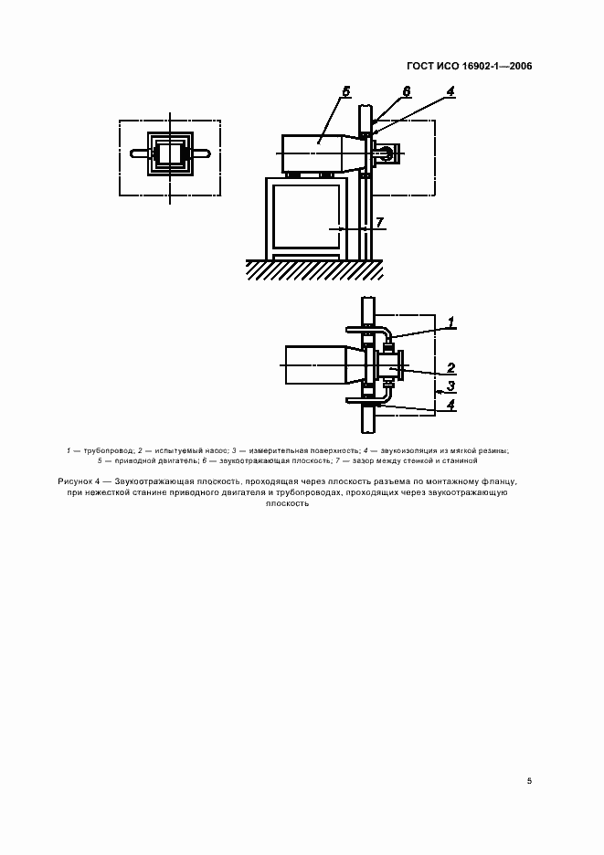
Настоящий стандарт устанавливает метод определения уровней звуковой мощности насосов гидропроводов на основе ИСО 9614-1 и ИСО 9614-2 при контролируемых условиях установки и режиме работы. Уровень звуковой мощности может включать шум, излучаемый любыми трубопроводами, находящимися внутри измерительной поверхности. Стандарт применяют для сравнения уровней воздушного шума насосов любого типа (совместно с гидроаппаратами, электромагнитами, приводными механизмами, муфтами или другими вспомогательными устройствами, необходимыми для эксплуатации насоса), преобразующих механическую энергию вращения в гидравлическую энергию
Связи и замены
Заменяющий:
-
Описание стандарта
ГОСТ ИСО 16902-1-2006 Шум машин. Технический метод определения уровней звуковой мощности насосов гидроприводов по интенсивности звука
Страницы стандарта















