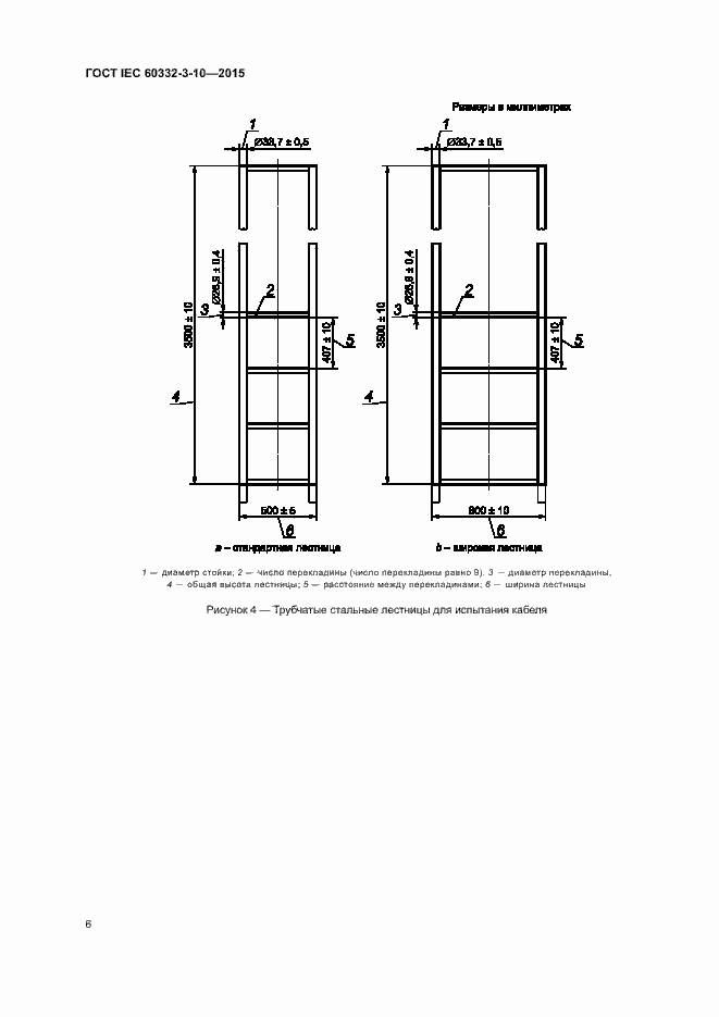
ГОСТ IEC 60332-3-10-2015 Испытания электрических и оптических кабелей в условиях воздействия пламени. Часть 3-10. Распространение пламени по вертикально расположенным пучкам проводов или кабелей. Испытательная установка
ГОСТ МЭК
Скачать ГОСТ в PDF или DOC бесплатно
Основная информация
Обозначение:
ГОСТ IEC 60332-3-10-2015
Статус:
Действует
Тип:
ГОСТ МЭК
Название русское:
Испытания электрических и оптических кабелей в условиях воздействия пламени. Часть 3-10. Распространение пламени по вертикально расположенным пучкам проводов или кабелей. Испытательная установка
Название английское:
Tests on electric and optical fibre cables under fire conditions. Part 3-10. Test for vertical flame spread of vertically-mounted bunched wires or cables. Apparatus
Даты и сроки
Дата регистрации:
06-18-15
Дата издания:
06-09-18
Дата введения в действие:
12-01-18
Дата завершения срока действия:
-
Применение и описание
Область и условия применения:
Настоящий стандарт входит в серию IEC 60332, состоящую из частей 3-10, 3-21, 3-22, 3-23, 3-24 и 3-25, и устанавливает методы испытаний по оценке распространения пламени в заданных условиях по вертикально расположенным пучкам электрических или оптических проводов или кабелей
Связи и замены
Заменяющий:
-
Описание стандарта
ГОСТ IEC 60332-3-10-2015 Испытания электрических и оптических кабелей в условиях воздействия пламени. Часть 3-10. Распространение пламени по вертикально расположенным пучкам проводов или кабелей. Испытательная установка
Страницы стандарта
















Приложение №1: Поправка к ГОСТ IEC 60332-3-10-2015 Обозначение: Поправка к ГОСТ IEC 60332-3-10-2015 Дата введения в действие: 30.12.2019
