ГОСТ 24997-2004 Калибры для метрической резьбы. Допуски
ГОСТ
Скачать ГОСТ в PDF или DOC бесплатно
Основная информация
Обозначение:
ГОСТ 24997-2004
Статус:
Действует
Тип:
ГОСТ
Название русское:
Калибры для метрической резьбы. Допуски
Название английское:
Gauges for metric thread. Tolerances
Даты и сроки
Дата регистрации:
05-26-04
Дата издания:
10-01-06
Дата введения в действие:
07-01-05
Дата завершения срока действия:
-
Применение и описание
Область и условия применения:
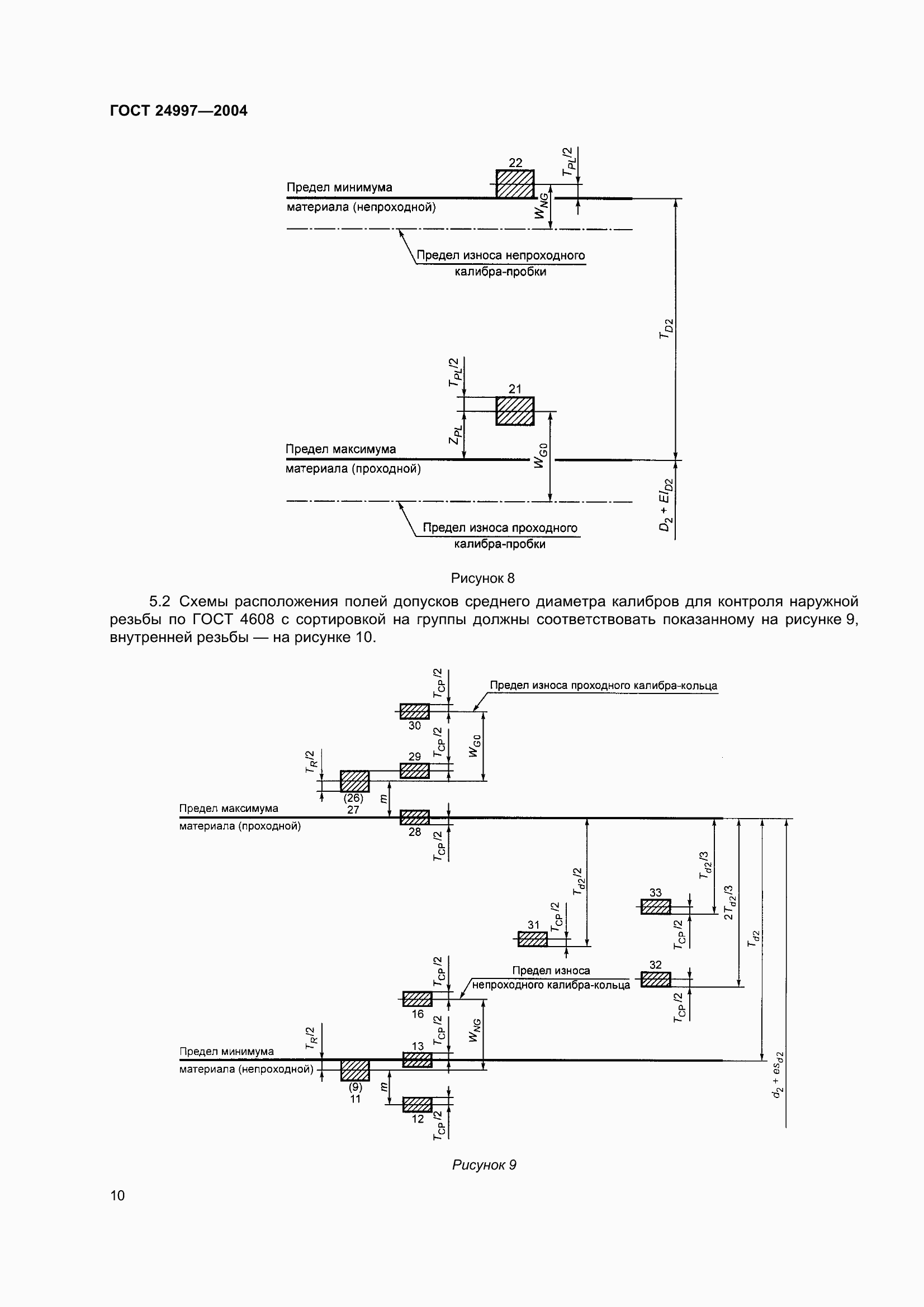
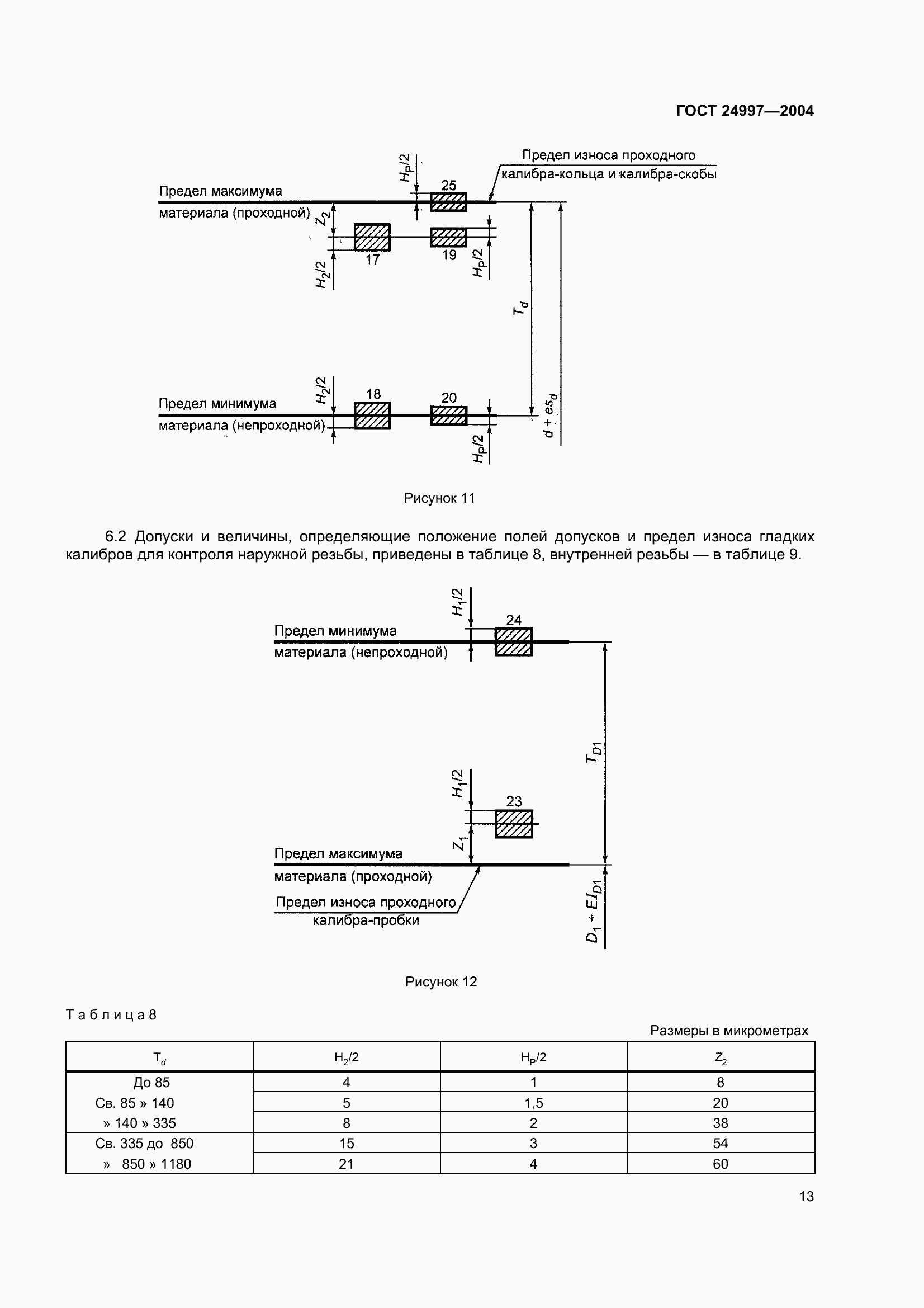
Настоящий стандарт распространяется на резьбовые и гладкие калибры для метрической резьбы с профилем по ГОСТ 9150, диаметрами и шагами по ГОСТ 8724 и ГОСТ 16967, основными размерами по ГОСТ 24705 и ГОСТ 24706 и допусками по ГОСТ 16093, ГОСТ 4608, ГОСТ 24834 и ГОСТ 11709. Виды калибров, их наименования, условные обозначения и правила применения калибров - по ГОСТ 24939, технические условия - по ГОСТ 2016
Приложение №1:
Изменение №1 к ГОСТ 24997-2004 Обозначение: Изменение №1 к ГОСТ 24997-2004 Дата введения в действие: 01.04.2006
Связи и замены
Заменяющий:
-
Взамен:
ГОСТ 24997-81
Изменения и переиздания
Список изменений:
№0 от (рег. ) «Дата введения перенесена»
Описание стандарта
ГОСТ 24997-2004 Калибры для метрической резьбы. Допуски
Страницы стандарта




























Приложение №1: Изменение №1 к ГОСТ 24997-2004 Обозначение: Изменение №1 к ГОСТ 24997-2004 Дата введения в действие: 01.04.2006

Приложение №2: Поправка к ГОСТ 24997-2004 Обозначение: Поправка к ГОСТ 24997-2004 Дата введения в действие: 01.04.2006

Приложение №3: Поправка к ГОСТ 24997-2004 Обозначение: Поправка к ГОСТ 24997-2004 Дата введения в действие: 29.08.2024
