ГОСТ Р 55738-2013 Шпильки и керамические кольца для сварки
ГОСТ Р
Скачать ГОСТ в PDF или DOC бесплатно
Основная информация
Обозначение:
ГОСТ Р 55738-2013
Статус:
Действует
Тип:
ГОСТ Р
Название русское:
Шпильки и керамические кольца для сварки
Название английское:
Studs and ceramic ferrules for stud welding
Даты и сроки
Дата издания:
11-26-14
Дата введения в действие:
01-01-15
Дата завершения срока действия:
-
Применение и описание
Область и условия применения:
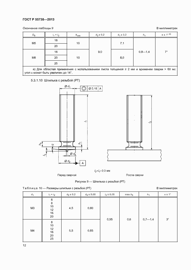
Настоящий стандарт распространяется на металлические привариваемые шпильки различного назначения и керамические кольца для их сварки и устанавливает: - технические требования к шпилькам и керамическим кольцам для дуговой сварки шпилек; - размеры, материалы, механические свойства, объемы и методы контроля и критерии оценки соответствия
Связи и замены
Заменяющий:
-
Описание стандарта
ГОСТ Р 55738-2013 Шпильки и керамические кольца для сварки
Страницы стандарта

















































