ГОСТ Р 50790-95 Болты с шестигранной головкой с мелким шагом резьбы классов точности А и В. Технические условия
ГОСТ Р
Скачать ГОСТ в PDF или DOC бесплатно
Основная информация
Обозначение:
ГОСТ Р 50790-95
Статус:
Заменен
Тип:
ГОСТ Р
Название русское:
Болты с шестигранной головкой с мелким шагом резьбы классов точности А и В. Технические условия
Название английское:
Hexagon head bolts with metric fine pitch thread, product grades A and B. Specifications
Даты и сроки
Дата издания:
11-01-06
Дата введения в действие:
06-30-96
Дата завершения срока действия:
07-01-14
Применение и описание
Область и условия применения:
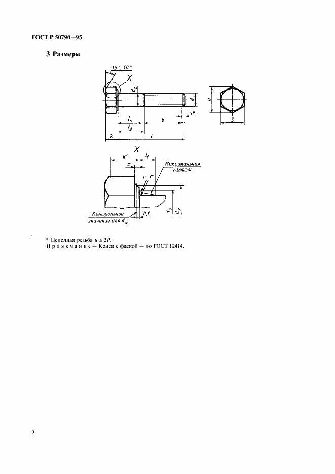
Настоящий стандарт распространяется на болты с шестигранной головкой с диаметрами резьбы от М8 до М64 с мелким шагом резьбы класса точности А (для резьбы до М24 и номинальных длин до 10d, но не более 150 мм) и класса точности В (для резьбы более М24 или для номинальных длин более 10d или более 150 мм)
Связи и замены
Заменяющий:
ГОСТ Р ИСО 8765-2013
Описание стандарта
ГОСТ Р 50790-95 Болты с шестигранной головкой с мелким шагом резьбы классов точности А и В. Технические условия
Страницы стандарта













