ГОСТы >
01.080.30 Графические обозначения для машиностроительных и строительных чертежей, диаграмм, планов, карт и соответствующей технической документации на продукцию >
ГОСТ 2.104-68
ГОСТ 2.104-68 Единая система конструкторской документации. Основные надписи
ГОСТ
Скачать ГОСТ в PDF или DOC бесплатно
Основная информация
Обозначение:
ГОСТ 2.104-68
Статус:
Заменен
Тип:
ГОСТ
Название русское:
Единая система конструкторской документации. Основные надписи
Название английское:
Unified system for design documentation. Basic inscriptions
Даты и сроки
Дата издания:
06-01-02
Дата введения в действие:
01-01-71
Дата завершения срока действия:
09-01-06
Применение и описание
Область и условия применения:
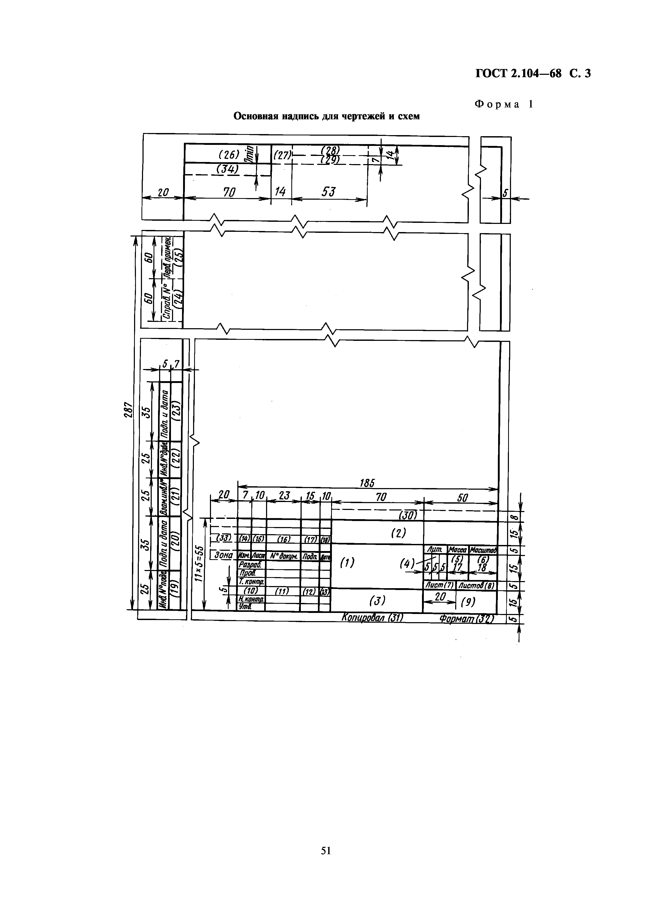
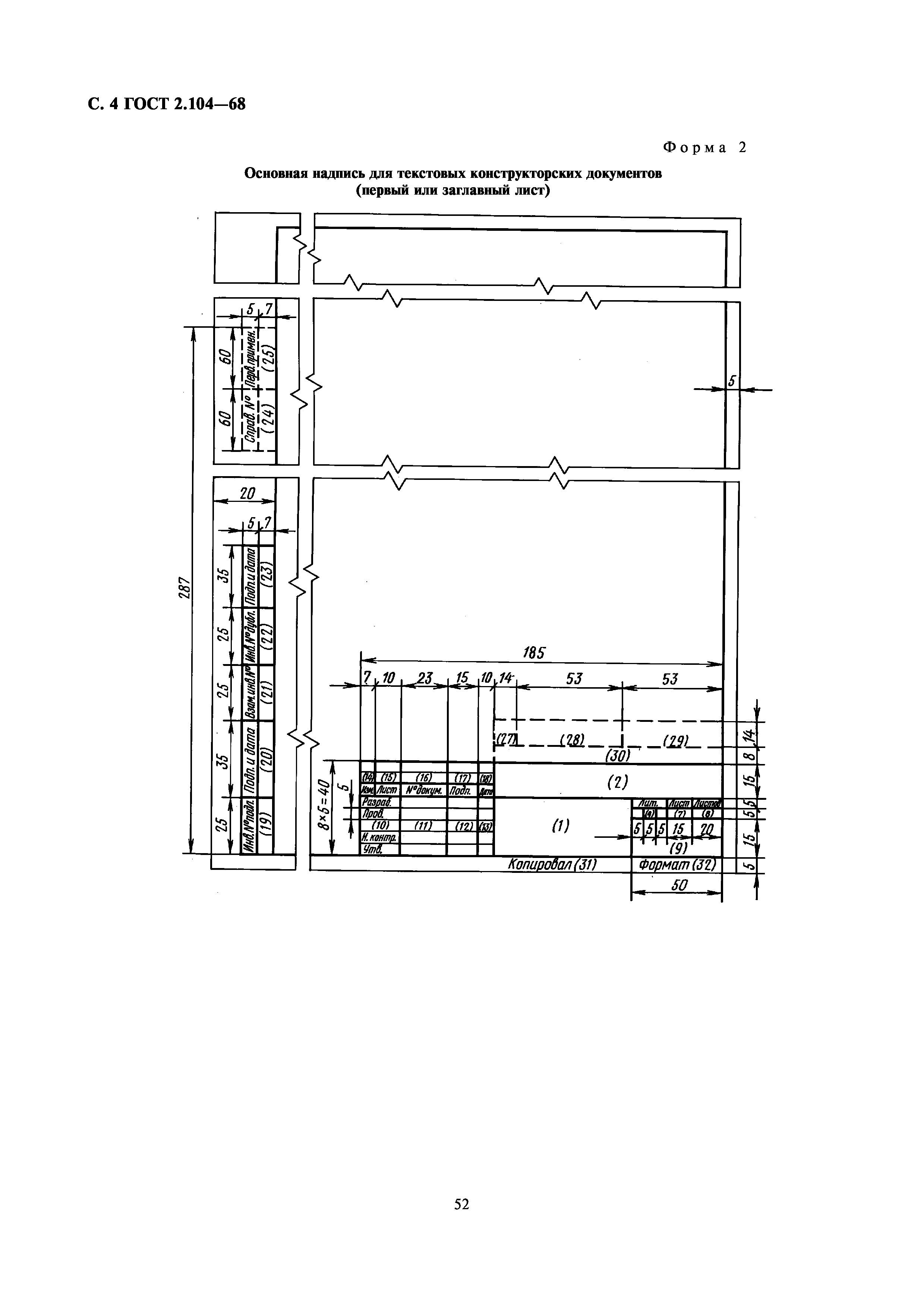
Настоящий стандарт устанавливает формы, размеры, порядок заполнения основных надписей и дополнительных граф к ним в конструкторских документах, предусмотренных стандартами Единой системы конструкторской документации
Связи и замены
Заменяющий:
ГОСТ 2.104-2006
Взамен в части:
ГОСТ 5293-60 в части разд. 1
Изменения и переиздания
Список изменений:
№0 от (рег. ) «Дата введения перенесена» №1 от (рег. ) «Срок действия продлен» №2 от (рег. ) «Срок действия продлен» №3 от (рег. ) «Срок действия продлен» №4 от (рег. ) «Срок действия продлен» №5 от (рег. ) «Срок действия продлен» №6 от (рег. ) «Срок действия продлен» №7 от (рег. ) «Срок действия продлен»
Описание стандарта
ГОСТ 2.104-68 Единая система конструкторской документации. Основные надписи
Страницы стандарта







