ГОСТ Р 59132-2020 Автомобильные транспортные средства. Изделия крепежные. Поднутрения. Формы и размеры
ГОСТ Р
Скачать ГОСТ в PDF или DOC бесплатно
Основная информация
Обозначение:
ГОСТ Р 59132-2020
Статус:
Действует
Тип:
ГОСТ Р
Название русское:
Автомобильные транспортные средства. Изделия крепежные. Поднутрения. Формы и размеры
Название английское:
Motor vehigles. Fasteners. Undercuts. Forms and sizes
Даты и сроки
Дата издания:
12-17-20
Дата введения в действие:
06-01-21
Дата завершения срока действия:
-
Применение и описание
Область и условия применения:
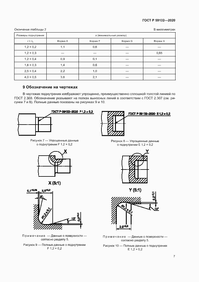
Настоящий стандарт распространяется на поднутрения обтачиваемых крепежных изделий с наружной резьбой и отверстиями и устанавливает их формы и размеры. Применение настоящего стандарта позволяет уменьшить количество необходимых инструментов
Связи и замены
Заменяющий:
-
Описание стандарта
ГОСТ Р 59132-2020 Автомобильные транспортные средства. Изделия крепежные. Поднутрения. Формы и размеры
Страницы стандарта










