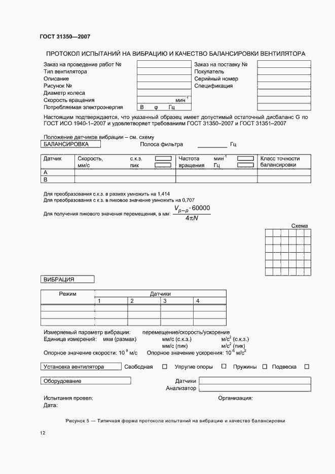
ГОСТ 31350-2007 Вибрация. Вентиляторы промышленные. Требования к производимой вибрации и качеству балансировки
ГОСТ
Скачать ГОСТ в PDF или DOC бесплатно
Основная информация
Обозначение:
ГОСТ 31350-2007
Статус:
Действует
Тип:
ГОСТ
Название русское:
Вибрация. Вентиляторы промышленные. Требования к производимой вибрации и качеству балансировки
Название английское:
Vibration. Industrial fans. Requirements for vibration levels and balance quality
Даты и сроки
Дата регистрации:
10-24-07
Дата издания:
05-26-08
Дата введения в действие:
07-01-08
Дата завершения срока действия:
-
Применение и описание
Область и условия применения:
Настоящий стандарт устанавливает предельные значения вибрации и допустимые значения дисбалансов для промышленных вентиляторов всех видов, кроме бытовых вентиляторов, предназначенных исключительно для создания воздушных потоков в помещении (например, потолочных или настольных). Установленные предельные значения распространяются на вентиляторы мощностью двигателя менее 300 кВт. Рекомендации для вентиляторов большей мощности даны в ГОСТ ИСО 10816-3
Связи и замены
Заменяющий:
-
Взамен в части:
ГОСТ 11442-90 в части предельных значений вибрации и допустимых значений дисбалансов; ГОСТ 5976-90 в части предельных значений вибрации и допустимых значений дисбалансов
Изменения и переиздания
Список изменений:
№0 от (рег. ) «Дата введения перенесена»
Описание стандарта
ГОСТ 31350-2007 Вибрация. Вентиляторы промышленные. Требования к производимой вибрации и качеству балансировки
Страницы стандарта





































Приложение №1: Поправка к ГОСТ 31350-2007 Обозначение: Поправка к ГОСТ 31350-2007 Дата введения в действие: 01.11.2008
