ГОСТ Р 54892-2012 Монтаж установок разделения воздуха и другого криогенного оборудования. Общие положения
ГОСТ Р
Скачать ГОСТ в PDF или DOC бесплатно
Основная информация
Обозначение:
ГОСТ Р 54892-2012
Статус:
Действует
Тип:
ГОСТ Р
Название русское:
Монтаж установок разделения воздуха и другого криогенного оборудования. Общие положения
Название английское:
Installation of air separation plants and other cryogenic equipment. General provisions
Даты и сроки
Дата издания:
08-22-12
Дата введения в действие:
06-01-12
Дата завершения срока действия:
-
Применение и описание
Область и условия применения:
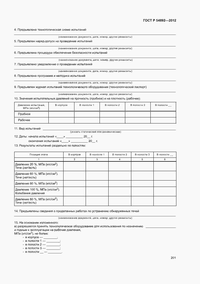
Настоящий стандарт устанавливает общие положения по организации методов (способов, приемов, режимов, норм и т.п.) выполнения работ (оказания услуг) по монтажу оборудования криогенной техники: установок разделения воздуха и других криогенных систем, отдельного оборудования и трубопроводов при строительстве, техническом перевооружении, реконструкции, капитальном ремонте объектов капитального строительства, методов контроля качества этих работ (услуг) и порядка их приемки. Положения настоящего стандарта направлены на качественное выполнение работ (оказание услуг) всеми участниками инвестиционного процесса на объекте капитального строительства, предупреждение возникновения аварийных ситуаций и случаев производственного травматизма
Связи и замены
Заменяющий:
-
Описание стандарта
ГОСТ Р 54892-2012 Монтаж установок разделения воздуха и другого криогенного оборудования. Общие положения
Страницы стандарта



















































































































































































































































































































































































