ГОСТ Р 58031-2017 Емкости стальные встроенные, вертикальные, цилиндрические с плоским дном, сварные, устанавливаемые над поверхностью для хранения жидкостей при температуре окружающей среды и выше. Правила проектирования и производства
ГОСТ Р
Скачать ГОСТ в PDF или DOC бесплатно
Основная информация
Обозначение:
ГОСТ Р 58031-2017
Статус:
Действует
Тип:
ГОСТ Р
Название русское:
Емкости стальные встроенные, вертикальные, цилиндрические с плоским дном, сварные, устанавливаемые над поверхностью для хранения жидкостей при температуре окружающей среды и выше. Правила проектирования и производства
Название английское:
Site built, vertical, cylindrical, flat-bottomed, above ground, welded, steel tanks for the storage of liquids at ambient temperature and above. Design and manufacture rules
Даты и сроки
Дата издания:
02-13-18
Дата введения в действие:
01-01-22
Дата завершения срока действия:
-
Применение и описание
Область и условия применения:
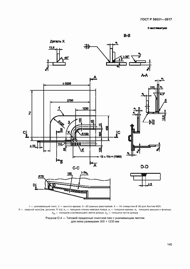
Настоящий стандарт распространяется на наземные, вертикальные, цилиндрические, сварные, стальные резервуары с плоским днищем для хранения жидкостей при температуре окружающей среды и выше, возводимые на строительной площадке. Настоящий стандарт распространяется на закрытые резервуары с расположенным внутри понтоном и без него, открытые резервуары с плавающей крышей
Связи и замены
Заменяющий:
-
Описание стандарта
ГОСТ Р 58031-2017 Емкости стальные встроенные, вертикальные, цилиндрические с плоским дном, сварные, устанавливаемые над поверхностью для хранения жидкостей при температуре окружающей среды и выше. Правила проектирования и производства
Страницы стандарта








































































































































































