ГОСТ Р 53402-2009 Арматура трубопроводная. Методы контроля и испытаний
ГОСТ Р
Скачать ГОСТ в PDF или DOC бесплатно
Основная информация
Обозначение:
ГОСТ Р 53402-2009
Статус:
Отменен
Тип:
ГОСТ Р
Название русское:
Арматура трубопроводная. Методы контроля и испытаний
Название английское:
Pipeline valves. Methods of control and testing
Даты и сроки
Дата издания:
03-10-10
Дата введения в действие:
01-01-10
Дата завершения срока действия:
04-01-17
Применение и описание
Область и условия применения:
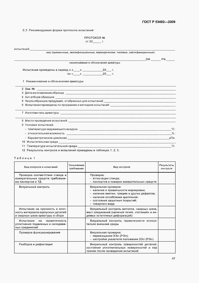
Настоящий стандарт распространяется на трубопроводную арматуру и устанавливает виды и категории испытаний, методы основных (обязательных) испытаний и контроля, и критерии оценки результатов основных испытаний. Основные испытания и контроль являются обязательными при проведении всех видов контрольных испытании серийно изготавливаемой арматуры, а также являются составной частью испытаний опытных образцов арматуры
Связи и замены
Заменяющий:
-
Изменения и переиздания
Список изменений:
№0 от (рег. ) «Текстовое изменение; Изменено заглавие»
Описание стандарта
ГОСТ Р 53402-2009 Арматура трубопроводная. Методы контроля и испытаний
Страницы стандарта

























































