ГОСТ 34029-2016 Арматура трубопроводная. Арматура обратная для магистральных нефтепроводов и нефтепродуктопроводов. Общие технические условия
ГОСТ
Скачать ГОСТ в PDF или DOC бесплатно
Основная информация
Обозначение:
ГОСТ 34029-2016
Статус:
Действует
Тип:
ГОСТ
Название русское:
Арматура трубопроводная. Арматура обратная для магистральных нефтепроводов и нефтепродуктопроводов. Общие технические условия
Название английское:
Pipeline valves. Сheck valves for trunk pipelines and petroleum product pipelines. General specifications
Даты и сроки
Дата регистрации:
12-19-16
Дата издания:
02-22-17
Дата введения в действие:
10-01-17
Дата завершения срока действия:
-
Применение и описание
Область и условия применения:
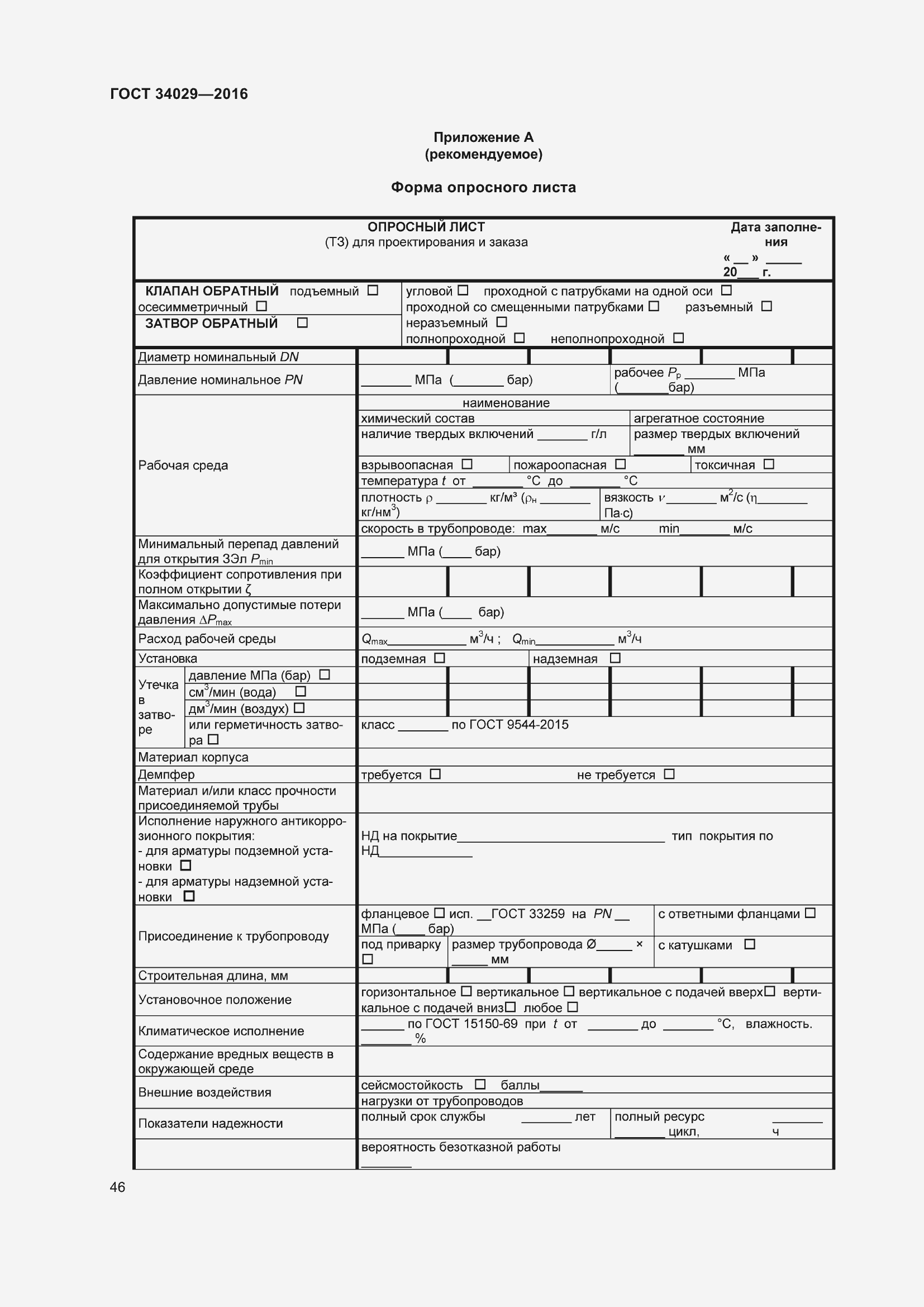
Настоящий стандарт распространяется на обратную трубопроводную арматуру-обратные затворы и обратные клапаны номинальных диаметров от DN 50 до DN 1200 на номинальное давление от PN 1,6 до PN 12,5 МПа (от 16 до 125 бар), предназначенные для предотвращения обратного потока рабочей среды в трубопроводах на объектах магистральных нефтепроводов и нефтепродуктопроводов
Связи и замены
Заменяющий:
-
Описание стандарта
ГОСТ 34029-2016 Арматура трубопроводная. Арматура обратная для магистральных нефтепроводов и нефтепродуктопроводов. Общие технические условия
Страницы стандарта







































































Приложение №1: Поправка к ГОСТ 34029-2016 Обозначение: Поправка к ГОСТ 34029-2016 Дата введения в действие: 14.03.2022
