ГОСТ 32601-2022 Насосы центробежные для нефтяной, нефтехимической и газовой промышленности. Общие технические требования
ГОСТ
Скачать ГОСТ в PDF или DOC бесплатно
Основная информация
Обозначение:
ГОСТ 32601-2022
Статус:
Действует
Тип:
ГОСТ
Название русское:
Насосы центробежные для нефтяной, нефтехимической и газовой промышленности. Общие технические требования
Название английское:
Centrifugal pumps for petroleum, petrochemical and natural gas industries. General technical requirements
Даты и сроки
Дата регистрации:
03-31-22
Дата издания:
08-01-22
Дата введения в действие:
03-01-23
Дата завершения срока действия:
-
Применение и описание
Область и условия применения:
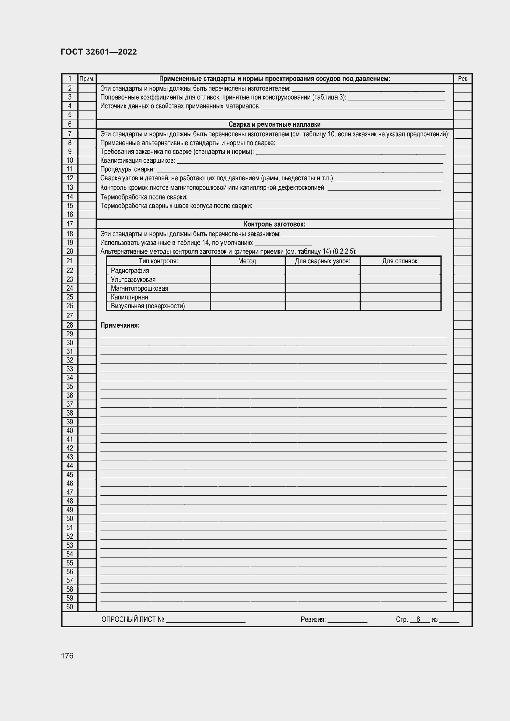
Настоящий стандарт устанавливает требования к центробежным насосам (включая насосы, работающие в реверсивном режиме в качестве гидротурбин для рекуперации гидравлической энергии), предназначенным для использования в технологических процессах нефтяной, нефтехимической и газовой промышленности. Настоящий стандарт распространяется на консольные, двухопорные (с ротором, расположенным между подшипниками), и вертикальные полупогружные насосы, с классификацией по 4.2. Раздел 9 настоящего стандарта устанавливает требования к отдельным типам насосов. Все остальные разделы настоящего стандарта применимы ко всем типам насосов. Настоящий стандарт содержит иллюстрации и условные обозначения каждого типа насоса
Связи и замены
Заменяющий:
-
Взамен:
ГОСТ 32601-2013
Описание стандарта
ГОСТ 32601-2022 Насосы центробежные для нефтяной, нефтехимической и газовой промышленности. Общие технические требования
Страницы стандарта































































































































































































Приложение №1: Поправка к ГОСТ 32601-2022 Обозначение: Поправка к ГОСТ 32601-2022 Дата введения в действие: 11.09.2023
