ГОСТ Р ИСО 13584-31-2010 Системы промышленной автоматизации и интеграция. Библиотека деталей. Часть 31. Ресурсы реализации. Интерфейс геометрического программирования
ГОСТ Р ИСО
Скачать ГОСТ в PDF или DOC бесплатно
Основная информация
Обозначение:
ГОСТ Р ИСО 13584-31-2010
Статус:
Действует
Тип:
ГОСТ Р ИСО
Название русское:
Системы промышленной автоматизации и интеграция. Библиотека деталей. Часть 31. Ресурсы реализации. Интерфейс геометрического программирования
Название английское:
Industrial automation systems and integration. Parts library. Part 31. Implementation resources. Geometric programming interface
Даты и сроки
Дата издания:
02-25-16
Дата введения в действие:
09-01-11
Дата завершения срока действия:
-
Применение и описание
Область и условия применения:
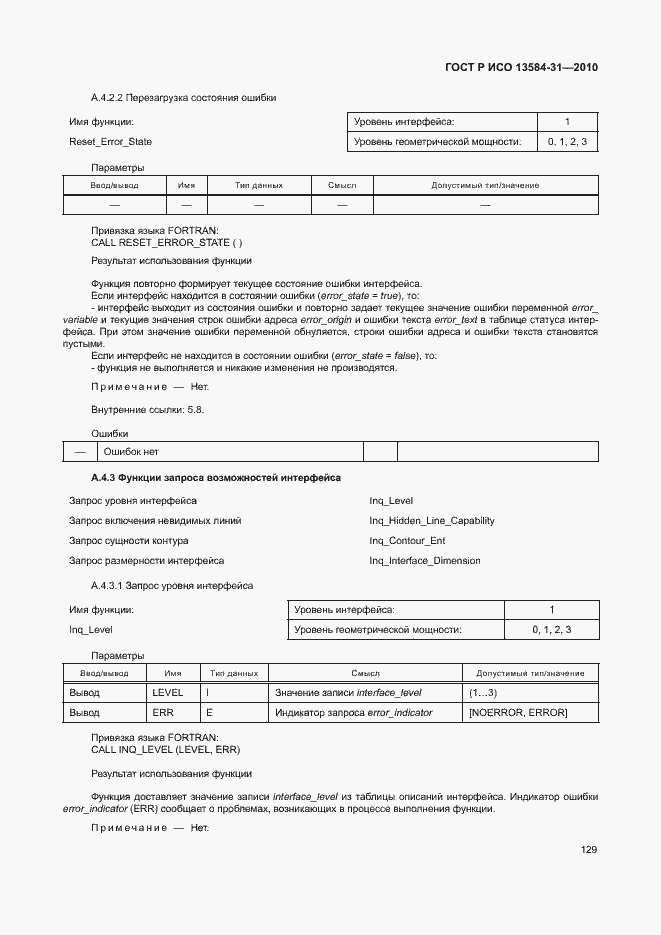
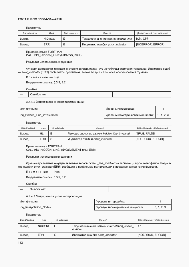
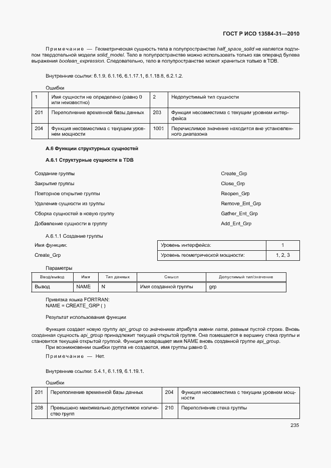
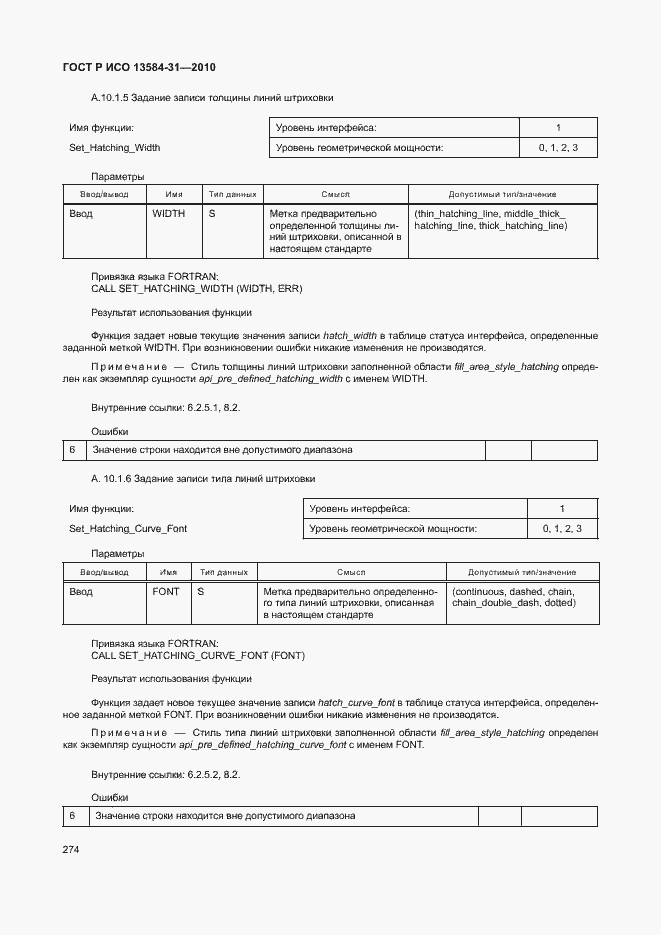
Настоящий стандарт устанавливает интерфейс прикладного программирования, с помощью которого прикладная программа генерирует геометрические модели независимо от целевой пользовательской системы. Данный интерфейс обеспечивает мобильность прикладных программ, описывающих представления параметрических форм семейств деталей в соответствии с комплексом стандартов ИСО 13584. Настоящий стандарт распространяется на: - программы, генерирующие геометрические представления внутри моделирующих систем, не зависящих от целевых систем; - программы, описывающие геометрические представления, созданные посредством геометрических определений с учетом ограничений; - программы, структурирующие геометрические представления, созданные независимо от целевой системы; - программы, описывающие атрибуты стиля воспроизведения для символической визуализации созданных представлений; - программы, поддерживающие стандарты технического черчения для представления форм, включая 2D-механизм для невидимых линий. Настоящий стандарт не распространяется на: - точное управление изображением на мониторе приемного устройства; - точное определение данных, создаваемых приемной системой; - хранение параметрической модели в приемной системе
Связи и замены
Заменяющий:
-
Описание стандарта
ГОСТ Р ИСО 13584-31-2010 Системы промышленной автоматизации и интеграция. Библиотека деталей. Часть 31. Ресурсы реализации. Интерфейс геометрического программирования
Страницы стандарта












































































































































































































































































































