ГОСТ Р 54132-2010 Представление и обмен данными по режущим инструментам. Часть 4. Справочный словарь по адаптивным элементам
ГОСТ Р
Скачать ГОСТ в PDF или DOC бесплатно
Основная информация
Обозначение:
ГОСТ Р 54132-2010
Статус:
Действует
Тип:
ГОСТ Р
Название русское:
Представление и обмен данными по режущим инструментам. Часть 4. Справочный словарь по адаптивным элементам
Название английское:
Cutting tool data representation and exchange. Part 4. Reference dictionary for adaptive items
Даты и сроки
Дата издания:
01-30-19
Дата введения в действие:
09-01-11
Дата завершения срока действия:
-
Применение и описание
Область и условия применения:
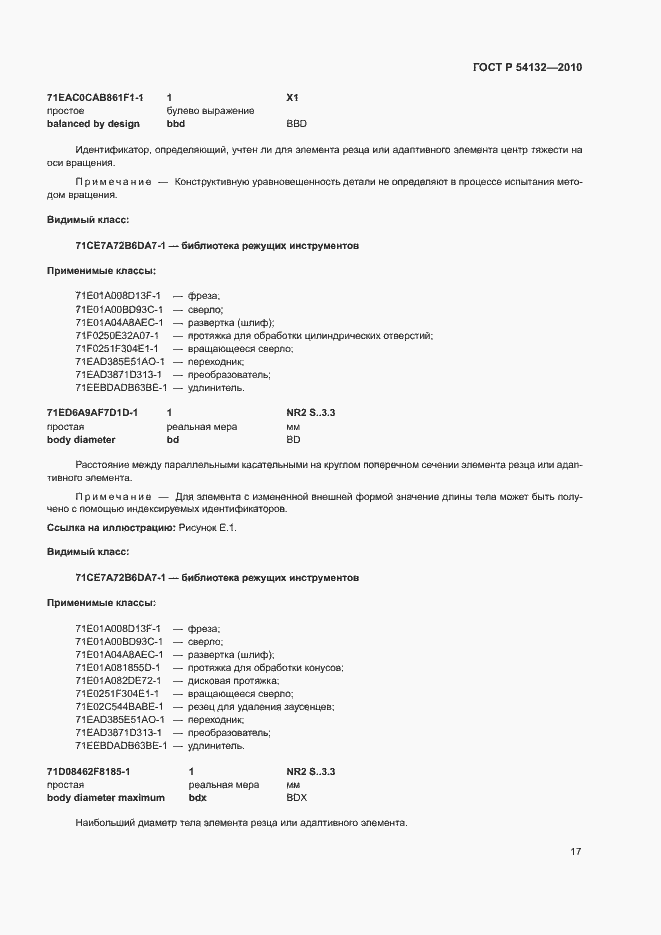
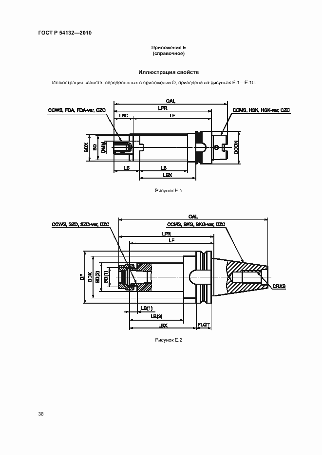
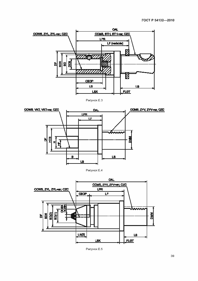
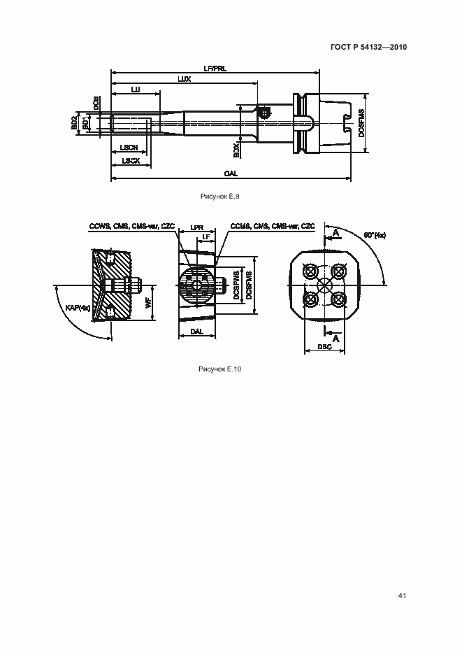
Настоящий стандарт устанавливает словарь ссылок на адаптивные элементы, а также их описательные свойства и домены значений. Настоящий стандарт устанавливает справочный словарь, содержащий: a) определения и идентификацию классов адаптивных элементов с ассоциированной схемой классификации; b) определения и идентификацию типов элементов данных, которые представляют свойства адаптивных элементов; с) определения и идентификацию доменов значений для описания указанных выше типов элементов данных. Настоящий стандарт распространяется на: - стандартные данные, представляющие разные классы адаптивных элементов; - стандартные данные, представляющие разные свойства адаптивных элементов; - стандартные данные, представляющие домены значений, используемых для свойств адаптивных элементов; - единичный метод реализации, с помощью которого возможно обмениваться стандартными данными, определенными в настоящем стандарте (см. ИСО 10303-21). Настоящий стандарт не распространяется на: - специализированные или экспертные знания в области проектирования и использования режущих инструментов; - правила, используемые для установления информации, которой следует обмениваться; - приложения в случае, когда вышеуказанные стандартные данные могут храниться или на них можно ссылаться; - методы реализации, отличающиеся от приведенных в настоящем стандарте, с помощью которых стандартными данными можно обмениваться или на них можно ссылаться; - информационные модели для режущих инструментов; - определения классов и свойств режущих элементов, элементов резцов, компоновочных элементов, систем отсчета и общих понятий, а также систем соединения. Данная информация приведена в других стандартах комплекса ИСО 13399
Связи и замены
Заменяющий:
-
Описание стандарта
ГОСТ Р 54132-2010 Представление и обмен данными по режущим инструментам. Часть 4. Справочный словарь по адаптивным элементам
Страницы стандарта

















































