ГОСТ Р ИСО 12164-1-2013 Хвостовики инструментов полые конические (HSK). Типы А и С. Основные размеры
ГОСТ Р ИСО
Скачать ГОСТ в PDF или DOC бесплатно
Основная информация
Обозначение:
ГОСТ Р ИСО 12164-1-2013
Статус:
Действует
Тип:
ГОСТ Р ИСО
Название русское:
Хвостовики инструментов полые конические (HSK). Типы А и С. Основные размеры
Название английское:
Hollow taper shank of tools (HSK). Types A and C. Basic dimensions
Даты и сроки
Дата издания:
05-29-20
Дата введения в действие:
07-01-14
Дата завершения срока действия:
-
Применение и описание
Область и условия применения:
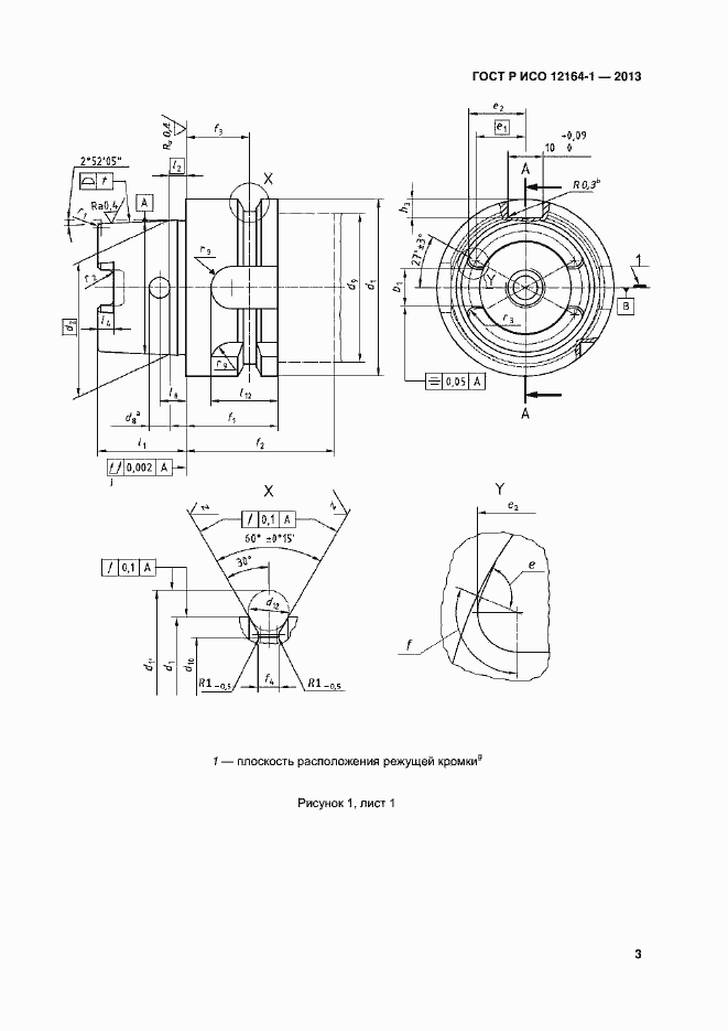
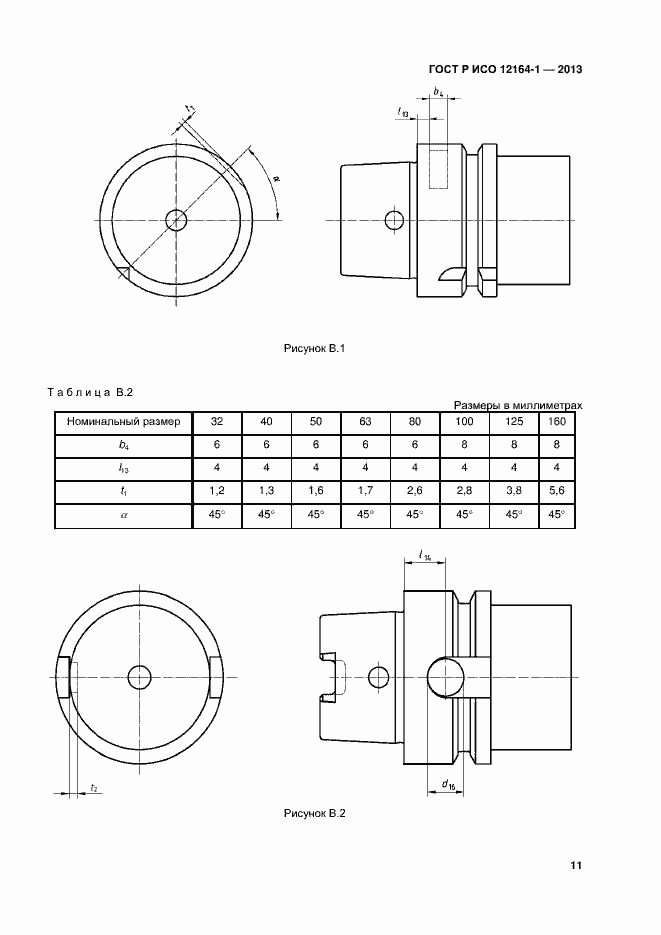
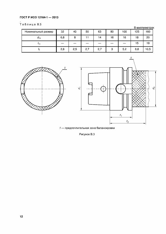
Настоящий стандарт распространяется на размеры полых конических хвостовиков (HSK) инструментов с прилеганием по плоскости фланца к торцу шпинделя токарных, сверлильных, фрезерных и шлифовальных станков. Настоящий стандарт распространяется на два типа хвостовиков. Тип А содержит проточенный паз на фланце для автоматической смены инструмента. Инструменты также могут быть заменены вручную. Тип С не содержит проточенный паз на фланце и может быть применен только для ручной смены инструмента. Ручную смену инструмента в обоих типах осуществляют через отверстие в конической части хвостовика. Крутящий момент передается посредством торцовой шпонки на конце хвостовика, а также - силой трения
Связи и замены
Заменяющий:
-
Взамен:
ГОСТ Р 51547-2000
Описание стандарта
ГОСТ Р ИСО 12164-1-2013 Хвостовики инструментов полые конические (HSK). Типы А и С. Основные размеры
Страницы стандарта















