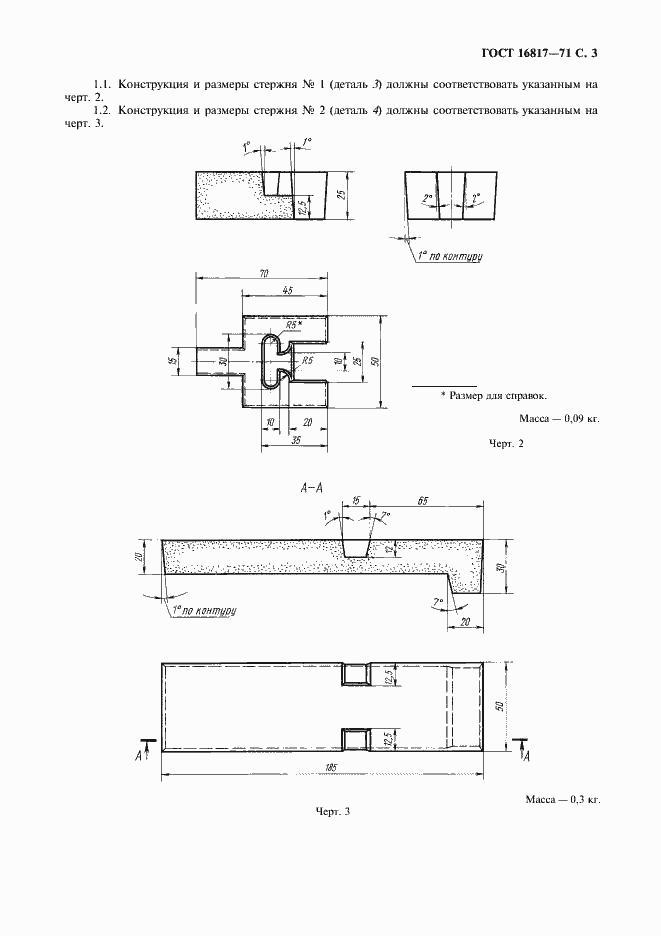
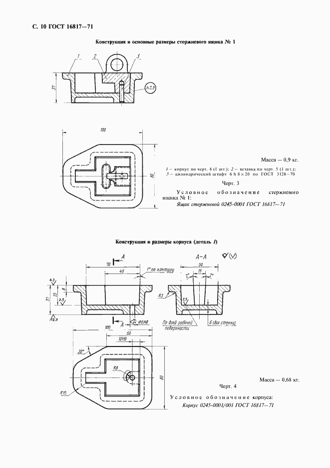
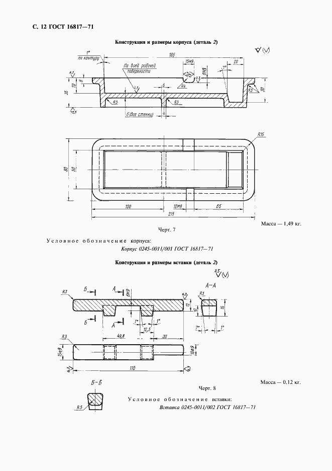
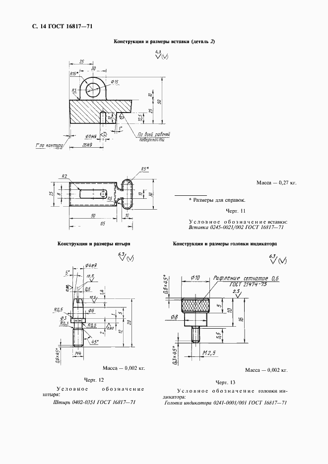
ГОСТ 16817-71 Формы песчаная и металлическая для определения линейной усадки цветных металлов и сплавов. Конструкция и размеры. Технические требования
ГОСТ
Скачать ГОСТ в PDF или DOC бесплатно
Основная информация
Обозначение:
ГОСТ 16817-71
Статус:
Действует
Тип:
ГОСТ
Название русское:
Формы песчаная и металлическая для определения линейной усадки цветных металлов и сплавов. Конструкция и размеры. Технические требования
Название английское:
Sand and metal moulds for determination of linear shrinkage of non-ferrous metals and alloys. Design and dimensions. Technical requirements
Даты и сроки
Дата издания:
08-01-99
Дата введения в действие:
01-01-72
Дата завершения срока действия:
-
Применение и описание
Область и условия применения:
Настоящий стандарт распространяется на песчаную (сухую) и металлическую (полукокильную) формы для определения линейной усадки цветных металлов и сплавов
Связи и замены
Заменяющий:
-
Изменения и переиздания
Список изменений:
№1 от (рег. ) «Срок действия продлен»
Описание стандарта
ГОСТ 16817-71 Формы песчаная и металлическая для определения линейной усадки цветных металлов и сплавов. Конструкция и размеры. Технические требования
Страницы стандарта


















