ГОСТ 2.113-75 Единая система конструкторской документации. Групповые и базовые конструкторские документы
ГОСТ
Скачать ГОСТ в PDF или DOC бесплатно
Основная информация
Обозначение:
ГОСТ 2.113-75
Статус:
Действует
Тип:
ГОСТ
Название русское:
Единая система конструкторской документации. Групповые и базовые конструкторские документы
Название английское:
Unified system for design documentation. Group and reference design documents
Даты и сроки
Дата издания:
08-01-07
Дата введения в действие:
07-01-76
Дата завершения срока действия:
-
Применение и описание
Область и условия применения:
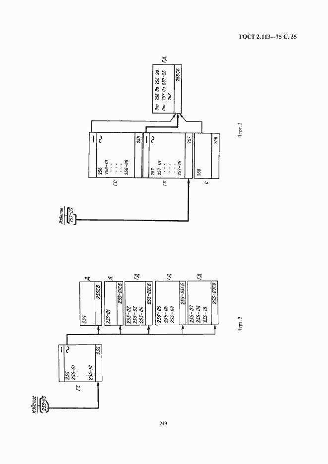
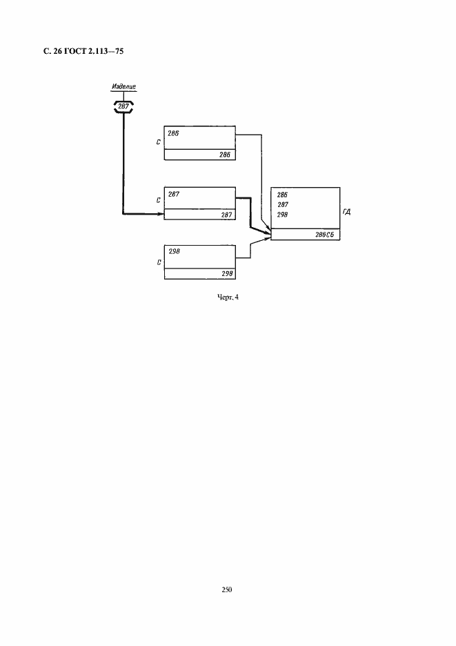
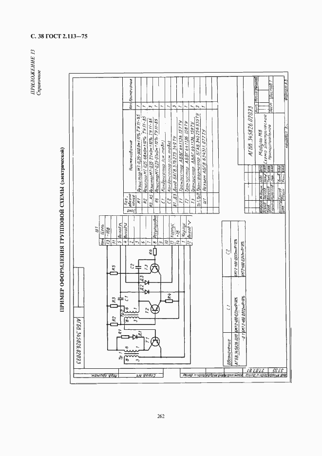
Настоящий стандарт устанавливает правила выполнения и обращения групповых и базовых конструкторских документов на изделия всех отраслей промышленности
Связи и замены
Заменяющий:
-
Взамен:
ГОСТ 2.113-70
Изменения и переиздания
Список изменений:
№1 от (рег. ) «Срок действия продлен» №2 от (рег. ) «Срок действия продлен» №3 от (рег. ) «Срок действия продлен» №4 от (рег. ) «Срок действия продлен» №5 от (рег. ) «Срок действия продлен»
Описание стандарта
ГОСТ 2.113-75 Единая система конструкторской документации. Групповые и базовые конструкторские документы
Страницы стандарта

















































