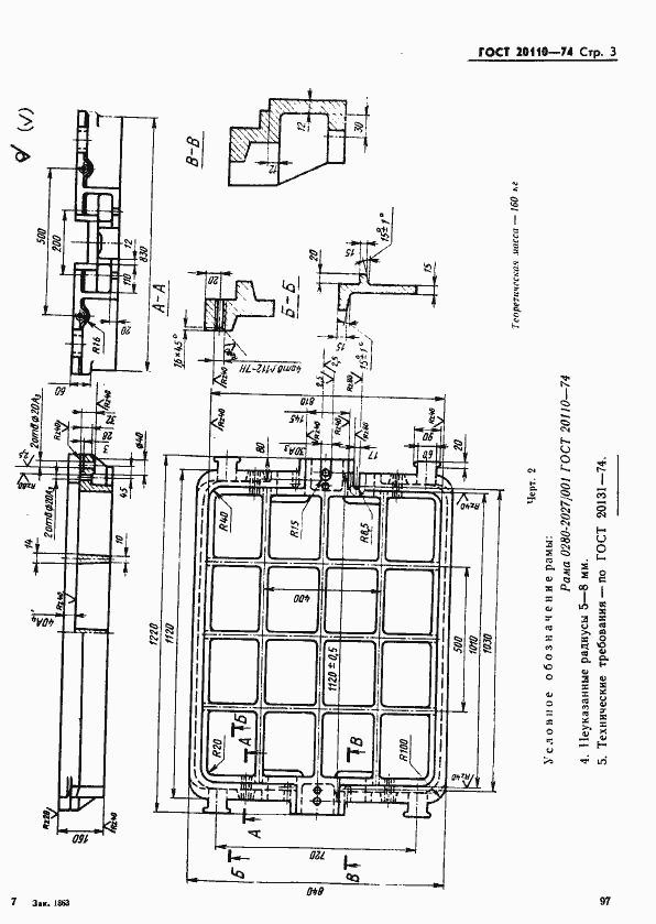
ГОСТ 20110-74 Плиты модельные стальные со сменными металлическими вкладышами для опок размерами в свету 1000х800 мм на формовочные литейные машины без поворота полуформы с допрессовкой. Конструкция и размеры
ГОСТ
Скачать ГОСТ в PDF или DOC бесплатно
Основная информация
Обозначение:
ГОСТ 20110-74
Статус:
Действует
Тип:
ГОСТ
Название русское:
Плиты модельные стальные со сменными металлическими вкладышами для опок размерами в свету 1000х800 мм на формовочные литейные машины без поворота полуформы с допрессовкой. Конструкция и размеры
Название английское:
Steel pattern plates with changeable metal insets for moulding boxes having inside dimensions 1000x800 mm for moulding foundry machines without turn of half mould with squeezing. Design and dimensions
Даты и сроки
Дата издания:
10-22-74
Дата введения в действие:
01-01-76
Дата завершения срока действия:
-
Применение и описание
Область и условия применения:
Настоящий стандарт устанавливает конструкцию и размеры модельных плит
Связи и замены
Заменяющий:
-
Изменения и переиздания
Список изменений:
№1 от (рег. ) «Срок действия продлен»
Описание стандарта
ГОСТ 20110-74 Плиты модельные стальные со сменными металлическими вкладышами для опок размерами в свету 1000х800 мм на формовочные литейные машины без поворота полуформы с допрессовкой. Конструкция и размеры
Страницы стандарта




