ГОСТ 20147-74 Плиты модельные со сменными мелкими деревянными вкладышами для опок размерами в свету 600х500 мм, 800х700 мм на формовочные литейные машины с поворотом полуформы с допрессовкой. Конструкция и размеры
ГОСТ
Скачать ГОСТ в PDF или DOC бесплатно
Основная информация
Обозначение:
ГОСТ 20147-74
Статус:
Действует
Тип:
ГОСТ
Название русское:
Плиты модельные со сменными мелкими деревянными вкладышами для опок размерами в свету 600х500 мм, 800х700 мм на формовочные литейные машины с поворотом полуформы с допрессовкой. Конструкция и размеры
Название английское:
Pattern plates with shallow changeable wooden inserts for moulding boxes having inside dimensions 600x500 mm, 800x700 mm for moulding foundry machines with turn of half mould with squeezing. Design and dimensions
Даты и сроки
Дата издания:
09-01-00
Дата введения в действие:
06-30-75
Дата завершения срока действия:
-
Применение и описание
Область и условия применения:
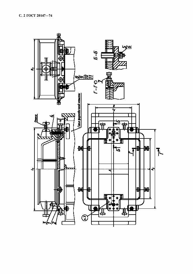
Настоящий стандарт устанавливает конструкцию и размеры модельных плит
Связи и замены
Заменяющий:
-
Взамен:
МН 1886-61
Изменения и переиздания
Список изменений:
№1 от (рег. ) «Срок действия продлен» №2 от (рег. ) «Срок действия продлен»
Описание стандарта
ГОСТ 20147-74 Плиты модельные со сменными мелкими деревянными вкладышами для опок размерами в свету 600х500 мм, 800х700 мм на формовочные литейные машины с поворотом полуформы с допрессовкой. Конструкция и размеры
Страницы стандарта





