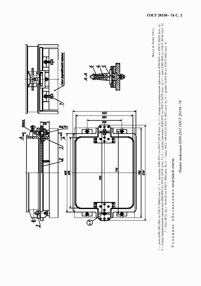
ГОСТ 20150-74 Плита модельная со сменным мелким деревянным вкладышем для опоки размерами в свету 600х500 мм на формовочные литейные машины без поворота полуформы с допрессовкой. Конструкция и размеры
ГОСТ
Скачать ГОСТ в PDF или DOC бесплатно
Основная информация
Обозначение:
ГОСТ 20150-74
Статус:
Действует
Тип:
ГОСТ
Название русское:
Плита модельная со сменным мелким деревянным вкладышем для опоки размерами в свету 600х500 мм на формовочные литейные машины без поворота полуформы с допрессовкой. Конструкция и размеры
Название английское:
Pattern plate with shallow changeable wooden inserts for moulding box having inside dimensions 600x500 mm for moulding foundry machines without turn of half mould with squeezing. Design and dimensions
Даты и сроки
Дата издания:
09-01-00
Дата введения в действие:
06-30-75
Дата завершения срока действия:
-
Применение и описание
Область и условия применения:
Настоящий стандарт устанавливает конструкцию и размеры модельной плиты
Связи и замены
Заменяющий:
-
Изменения и переиздания
Список изменений:
№1 от (рег. ) «Срок действия продлен» №2 от (рег. ) «Срок действия продлен»
Описание стандарта
ГОСТ 20150-74 Плита модельная со сменным мелким деревянным вкладышем для опоки размерами в свету 600х500 мм на формовочные литейные машины без поворота полуформы с допрессовкой. Конструкция и размеры
Страницы стандарта



