ГОСТ 20156-74 Плиты модельные со сменными деревянными вкладышами для опоки размерами в свету 1000х600 мм на формовочные литейные машины без поворота полуформы с допрессовкой. Конструкция и размеры
ГОСТ
Скачать ГОСТ в PDF или DOC бесплатно
Основная информация
Обозначение:
ГОСТ 20156-74
Статус:
Действует
Тип:
ГОСТ
Название русское:
Плиты модельные со сменными деревянными вкладышами для опоки размерами в свету 1000х600 мм на формовочные литейные машины без поворота полуформы с допрессовкой. Конструкция и размеры
Название английское:
Pattern plates with changeable wooden insert for moulding box having inside dimensions 1000x600 mm for moulding foundry machines without turn of half mould with squeezing. Design and dimensions
Даты и сроки
Дата издания:
09-01-00
Дата введения в действие:
06-30-75
Дата завершения срока действия:
-
Применение и описание
Область и условия применения:
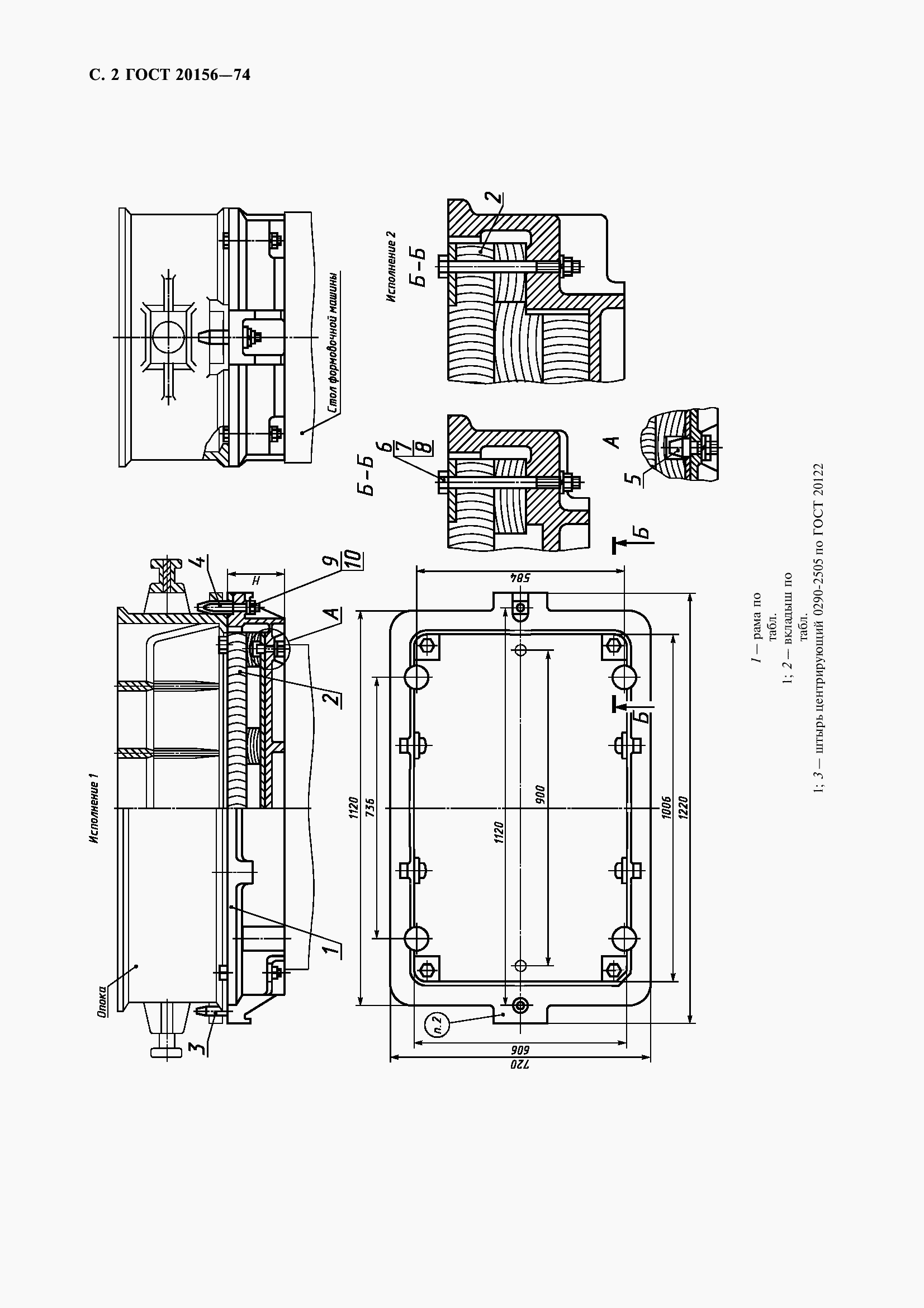
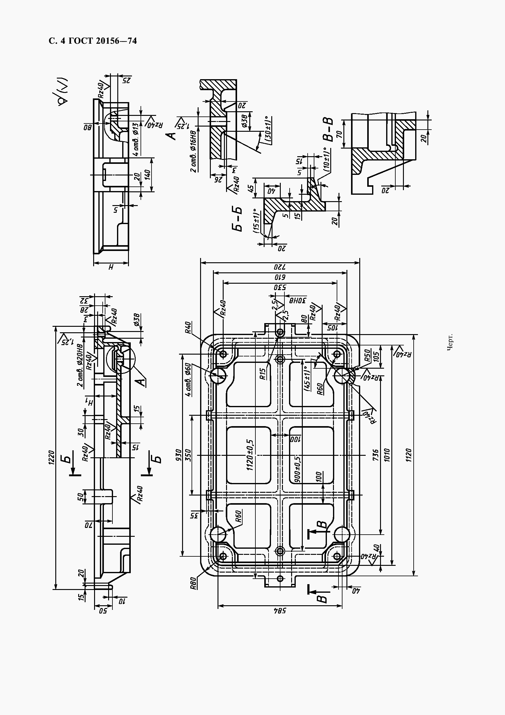
Настоящий стандарт устанавливает конструкцию и размеры модельных плит
Связи и замены
Заменяющий:
-
Изменения и переиздания
Список изменений:
№1 от (рег. ) «Срок действия продлен» №2 от (рег. ) «Срок действия продлен»
Описание стандарта
ГОСТ 20156-74 Плиты модельные со сменными деревянными вкладышами для опоки размерами в свету 1000х600 мм на формовочные литейные машины без поворота полуформы с допрессовкой. Конструкция и размеры
Страницы стандарта








Приложение №3: Поправка к ГОСТ 20156-74 Обозначение: Поправка к ГОСТ 20156-74 Дата введения в действие: 08.12.2023
