ГОСТ 3.1105-84 Единая система технологической документации. Формы и правила оформления документов общего назначения
ГОСТ
Скачать ГОСТ в PDF или DOC бесплатно
Основная информация
Обозначение:
ГОСТ 3.1105-84
Статус:
Заменен
Тип:
ГОСТ
Название русское:
Единая система технологической документации. Формы и правила оформления документов общего назначения
Название английское:
Unified system of technological documentation. Forms and rules of making general-purpose documents
Даты и сроки
Дата издания:
12-01-05
Дата введения в действие:
01-01-86
Дата завершения срока действия:
01-01-12
Применение и описание
Область и условия применения:
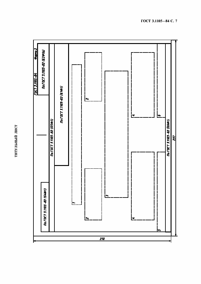
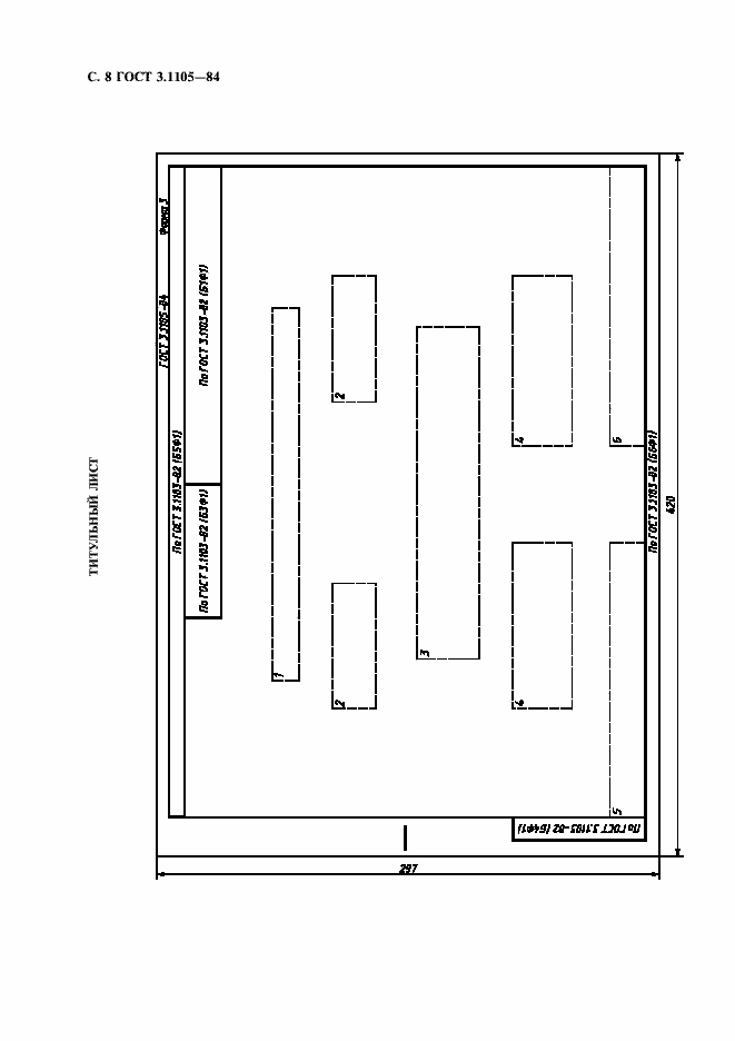
Настоящий стандарт устанавливает формы и правила оформления технологических документов общего назначения: титульного листа, технологической инструкции и карты эскизов, разрабатываемых с применением различных методов проектирования
Связи и замены
Заменяющий:
ГОСТ 3.1105-2011
Взамен:
ГОСТ 3.1117-81
Взамен в части:
ГОСТ 3.1105-74, кроме разд. 5, 6; ГОСТ 3.1110-75, кроме разд. 4, 5
Изменения и переиздания
Список изменений:
№1 от (рег. ) «Срок действия продлен»
Описание стандарта
ГОСТ 3.1105-84 Единая система технологической документации. Формы и правила оформления документов общего назначения
Страницы стандарта






















