ГОСТ 26390-84 Механизмы крючковые для подачи ленты шириной до 200 мм. Основные и присоединительные размеры
ГОСТ
Скачать ГОСТ в PDF или DOC бесплатно
Основная информация
Обозначение:
ГОСТ 26390-84
Статус:
Действует
Тип:
ГОСТ
Название русское:
Механизмы крючковые для подачи ленты шириной до 200 мм. Основные и присоединительные размеры
Название английское:
Hook mechanisms for strip feeding maximum width 200 mm. Basic and coupling dimensions
Даты и сроки
Дата издания:
03-22-85
Дата введения в действие:
01-01-86
Дата завершения срока действия:
-
Применение и описание
Область и условия применения:
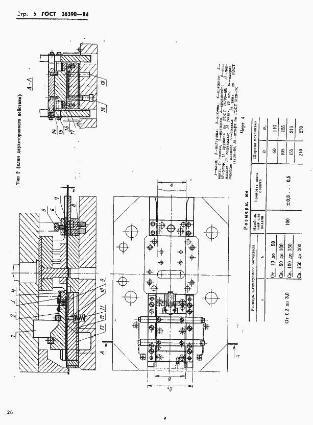
Настоящий стандарт устанавливает основные и присоединительные размеры крючковых механизмов
Связи и замены
Заменяющий:
-
Описание стандарта
ГОСТ 26390-84 Механизмы крючковые для подачи ленты шириной до 200 мм. Основные и присоединительные размеры
Страницы стандарта




