ГОСТ 3.1128-93 Единая система технологической документации. Общие правила выполнения графических технологических документов
ГОСТ
Скачать ГОСТ в PDF или DOC бесплатно
Основная информация
Обозначение:
ГОСТ 3.1128-93
Статус:
Действует
Тип:
ГОСТ
Название русское:
Единая система технологической документации. Общие правила выполнения графических технологических документов
Название английское:
The unifited system of technological documentation. General rules for drawing up of graphical technological documents
Даты и сроки
Дата регистрации:
10-21-93
Дата издания:
09-29-20
Дата введения в действие:
01-01-95
Дата завершения срока действия:
-
Применение и описание
Область и условия применения:
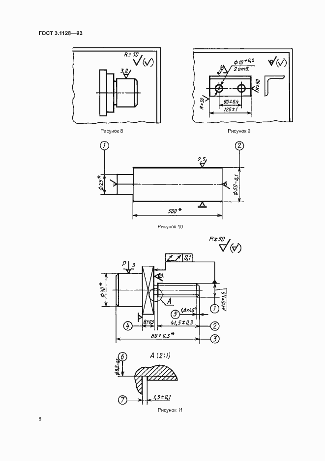
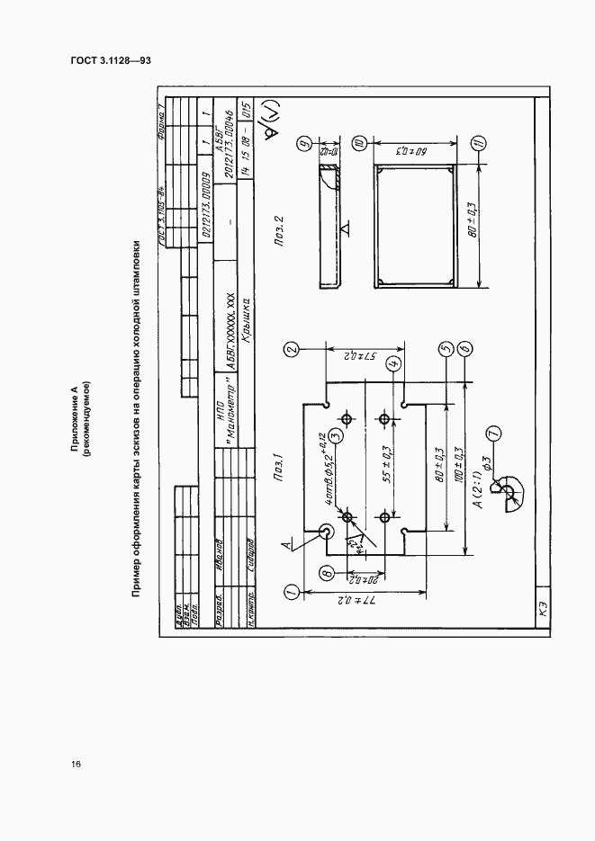
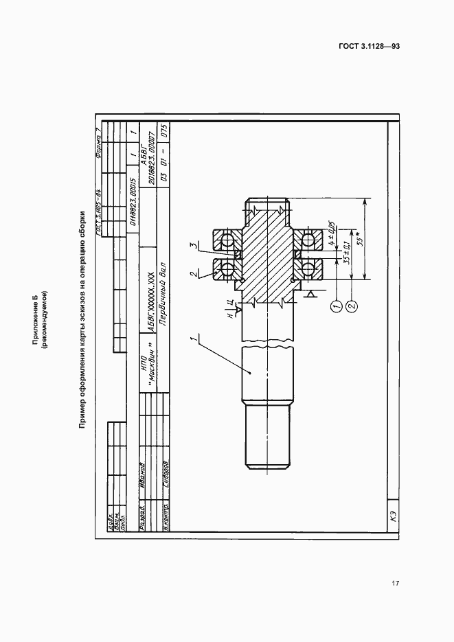
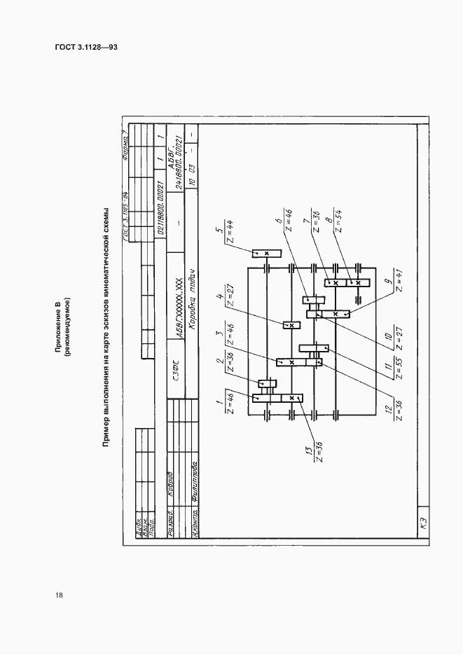
Настоящий стандарт устанавливает общие правила выполнения графических технологических документов в комплектах документов на технологические процессы и операции машиностроения и приборостроения или в технологических инструкциях
Связи и замены
Заменяющий:
-
Описание стандарта
ГОСТ 3.1128-93 Единая система технологической документации. Общие правила выполнения графических технологических документов
Страницы стандарта






















