ГОСТ 3.1407-86 Единая система технологической документации. Формы и требования к заполнению и оформлению документов на технологические процессы (операции), специализированные по методам сборки
ГОСТ
Скачать ГОСТ в PDF или DOC бесплатно
Основная информация
Обозначение:
ГОСТ 3.1407-86
Статус:
Действует
Тип:
ГОСТ
Название русское:
Единая система технологической документации. Формы и требования к заполнению и оформлению документов на технологические процессы (операции), специализированные по методам сборки
Название английское:
Unified system for technological documentation. Forms and requirements for filling and arrangement of documents on technological processes (operations) specialized in assembling methods
Даты и сроки
Дата издания:
04-01-03
Дата введения в действие:
01-01-88
Дата завершения срока действия:
-
Применение и описание
Область и условия применения:
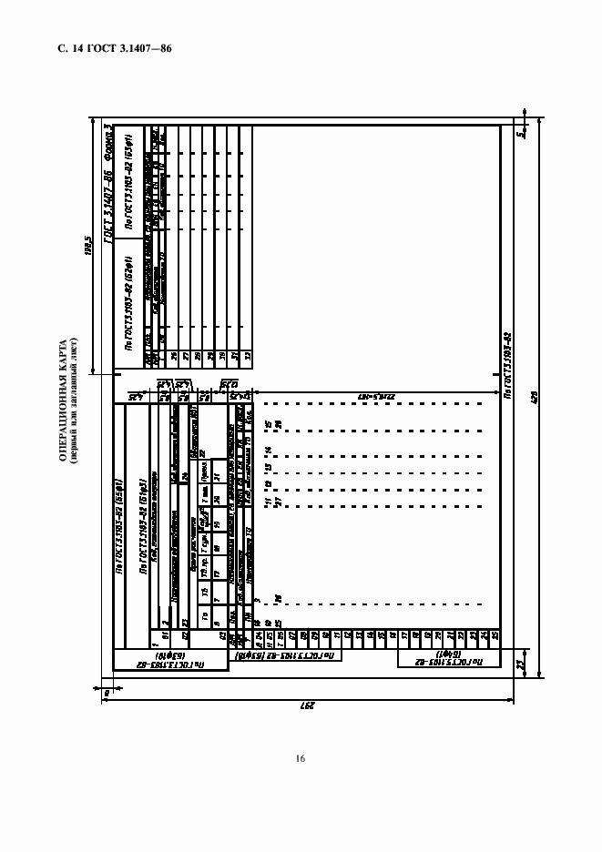
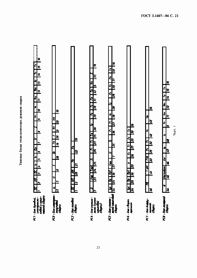
Настоящий стандарт устанавливает формы и требования к заполнению и оформлению технологических документов, проектируемых различными методами, на основные и сопутствующие процессы и операции, специализированные по методам сборки (включая сварку, пайку, клепку, монтаж, склеивание, обмотку и изолирование, а также промывку, пропитку, сушку, настойку, регулировку, выполнение слесарных и прочих операций) отдельно или комплексно применяемых при изготовлении изделий (составных частей изделий) машиностроения и приборостроения
Связи и замены
Заменяющий:
-
Взамен:
ГОСТ 3.1406-74;ГОСТ 3.1407-74;ГОСТ 3.1411-74;ГОСТ 3.1413-73;ГОСТ 3.1417-74;ГОСТ 3.1419-74;ГОСТ 3.1422-75;ГОСТ 3.1426-76;ГОСТ 3.1427-77;ГОСТ 3.1430-78
Описание стандарта
ГОСТ 3.1407-86 Единая система технологической документации. Формы и требования к заполнению и оформлению документов на технологические процессы (операции), специализированные по методам сборки
Страницы стандарта





























