ГОСТ 28830-90 Соединения паяные. Методы испытаний на растяжение и длительную прочность
ГОСТ
Скачать ГОСТ в PDF или DOC бесплатно
Основная информация
Обозначение:
ГОСТ 28830-90
Статус:
Действует
Тип:
ГОСТ
Название русское:
Соединения паяные. Методы испытаний на растяжение и длительную прочность
Название английское:
Soldered and brazed joints. Test methods for tension and long-term strength
Даты и сроки
Дата издания:
02-01-05
Дата введения в действие:
01-01-92
Дата завершения срока действия:
-
Применение и описание
Область и условия применения:
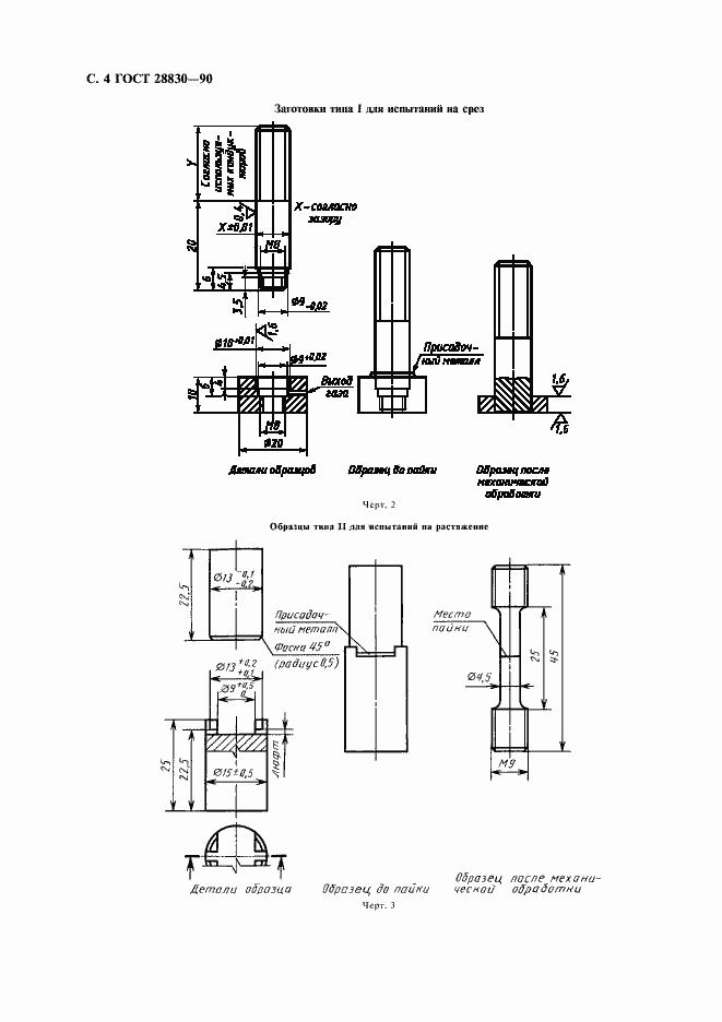
Настоящий стандарт распространяется на паяные соединения металлов и сплавов и устанавливает методы статических испытаний на растяжение и длительную прочность при нормальных, высоких и низких температурах от минус 269°С до 1200(+50)°C
Связи и замены
Заменяющий:
-
Взамен:
ГОСТ 23047-78;ГОСТ 25200-82;ГОСТ 26102-84
Описание стандарта
ГОСТ 28830-90 Соединения паяные. Методы испытаний на растяжение и длительную прочность
Страницы стандарта






























