ГОСТ Р 56143-2014 Испытания разрушающие сварных швов металлических материалов. Испытания на сопротивляемость образованию холодных трещин в сварных соединениях. Процессы дуговой сварки. Часть 3. Испытания с приложением внешней нагрузки
ГОСТ Р
Скачать ГОСТ в PDF или DOC бесплатно
Основная информация
Обозначение:
ГОСТ Р 56143-2014
Статус:
Действует
Тип:
ГОСТ Р
Название русское:
Испытания разрушающие сварных швов металлических материалов. Испытания на сопротивляемость образованию холодных трещин в сварных соединениях. Процессы дуговой сварки. Часть 3. Испытания с приложением внешней нагрузки
Название английское:
Destructive tests on welds in metallic materials. Cold cracking tests for weldments. Arc welding processes. Part 3. Externally loaded tests
Даты и сроки
Дата издания:
04-03-20
Дата введения в действие:
01-01-16
Дата завершения срока действия:
-
Применение и описание
Область и условия применения:
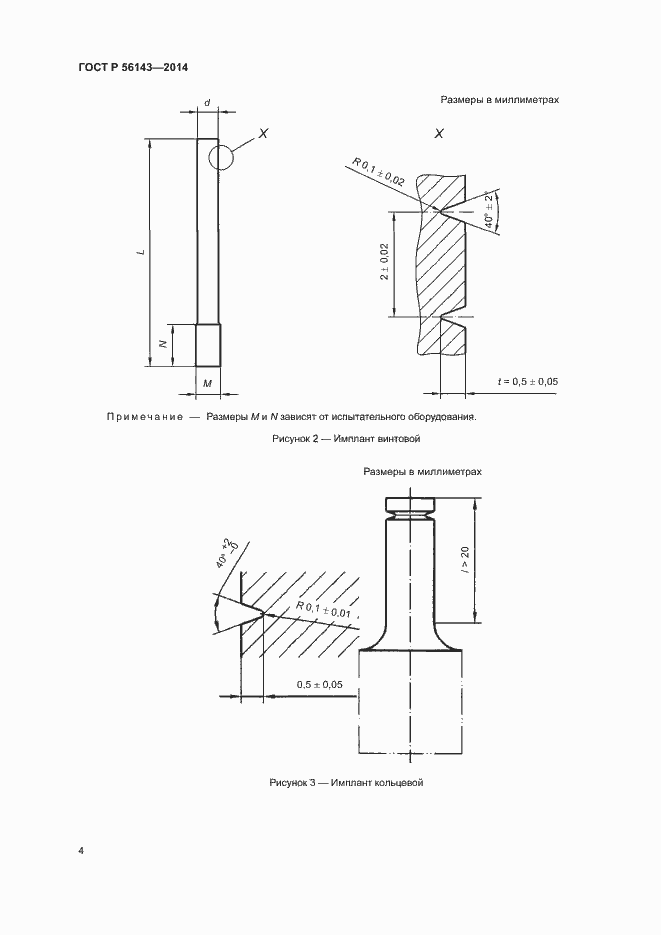
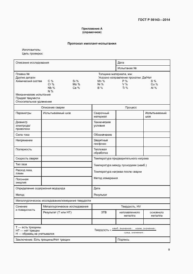
Настоящий стандарт устанавливает размеры образцов и процедуры выполнения имплант-испытаний на сопротивляемость образованию холодных трещин в сварных соединениях под действием внешней нагрузки. Настоящий стандарт применяется для углеродистых, марганцовистых и низколегированных сталей
Связи и замены
Заменяющий:
-
Описание стандарта
ГОСТ Р 56143-2014 Испытания разрушающие сварных швов металлических материалов. Испытания на сопротивляемость образованию холодных трещин в сварных соединениях. Процессы дуговой сварки. Часть 3. Испытания с приложением внешней нагрузки
Страницы стандарта














