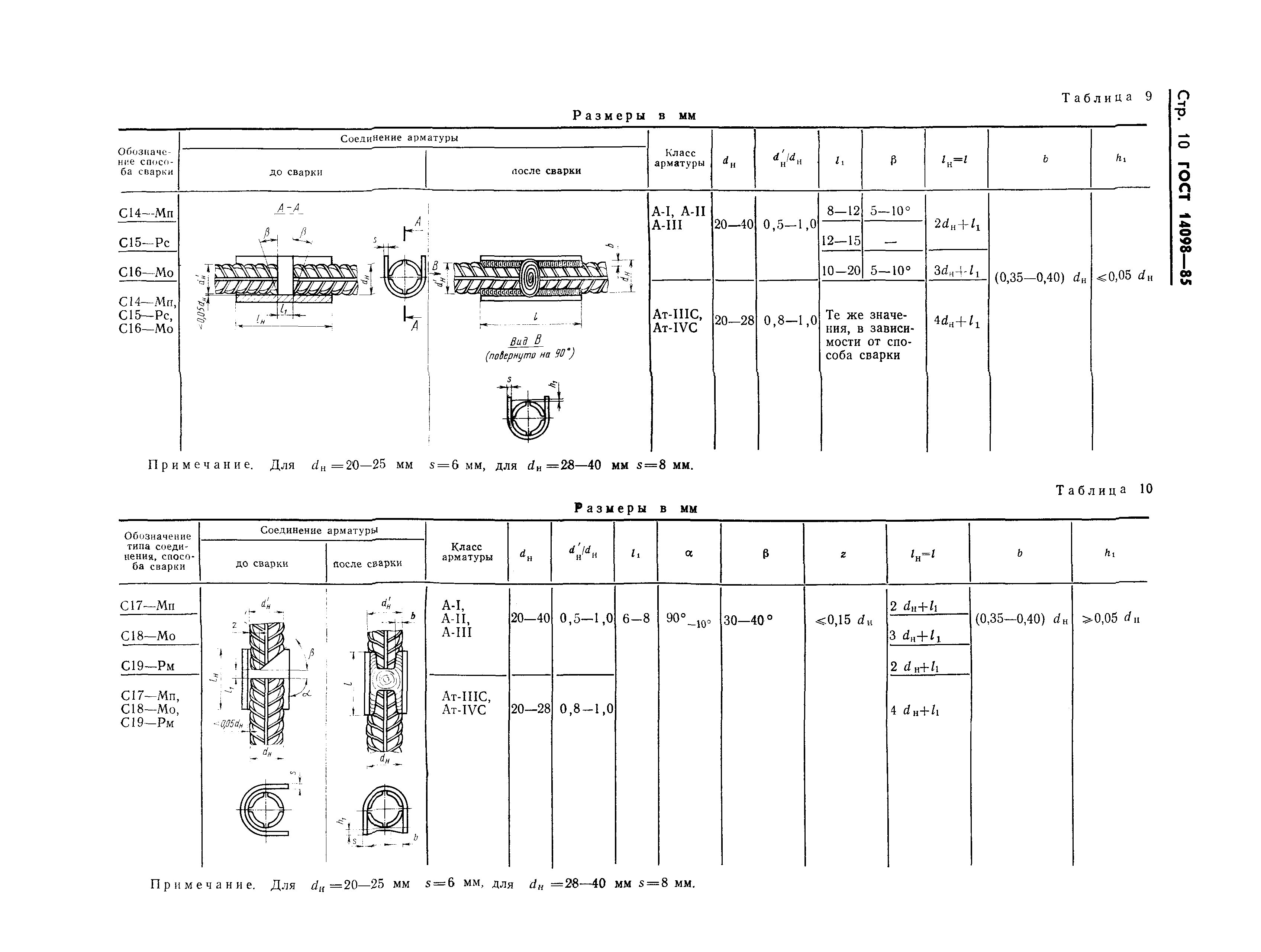
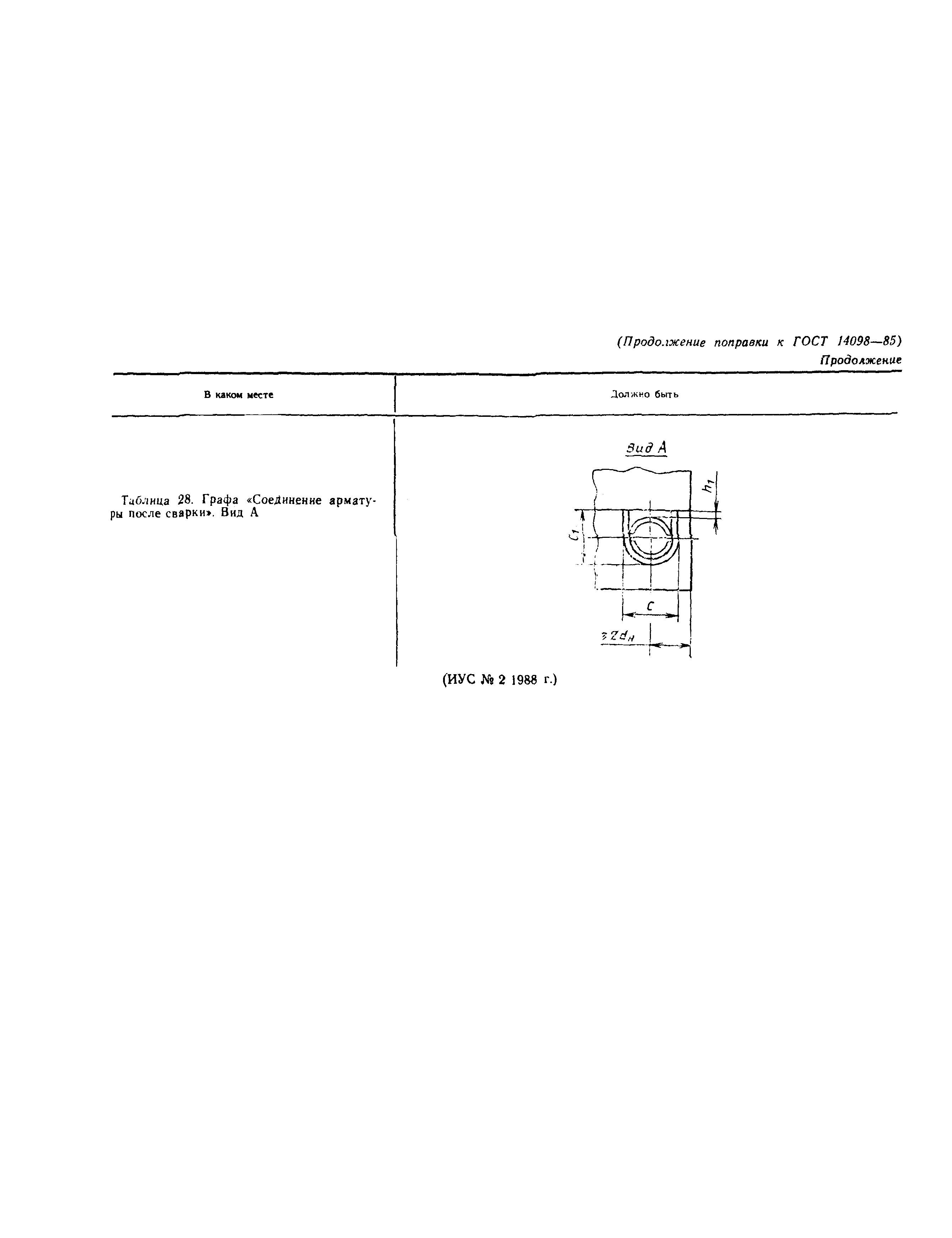
ГОСТ 14098-85 Соединения сварные арматуры и закладных изделий железобетонных конструкций. Типы, конструкция и размеры
ГОСТ
Скачать ГОСТ в PDF или DOC бесплатно
Основная информация
Обозначение:
ГОСТ 14098-85
Статус:
утратил силу в РФ
Тип:
ГОСТ
Название русское:
Соединения сварные арматуры и закладных изделий железобетонных конструкций. Типы, конструкция и размеры
Даты и сроки
Дата введения в действие:
01-01-87
Дата завершения срока действия:
07-01-92
Связи и замены
Заменяющий:
ГОСТ 14098-85
Описание стандарта
ГОСТ 14098-85 Соединения сварные арматуры и закладных изделий железобетонных конструкций. Типы, конструкция и размеры
Страницы стандарта














































