ГОСТ Р 59023.2-2020 Сварка и наплавка оборудования и трубопроводов атомных энергетических установок. Основные типы сварных соединений
ГОСТ Р
Скачать ГОСТ в PDF или DOC бесплатно
Основная информация
Обозначение:
ГОСТ Р 59023.2-2020
Статус:
Действует
Тип:
ГОСТ Р
Название русское:
Сварка и наплавка оборудования и трубопроводов атомных энергетических установок. Основные типы сварных соединений
Название английское:
Welding and cladding of equipment and piping of nuclear power installations. Main types of welded joints
Даты и сроки
Дата издания:
01-26-21
Дата введения в действие:
02-01-22
Дата завершения срока действия:
-
Применение и описание
Область и условия применения:
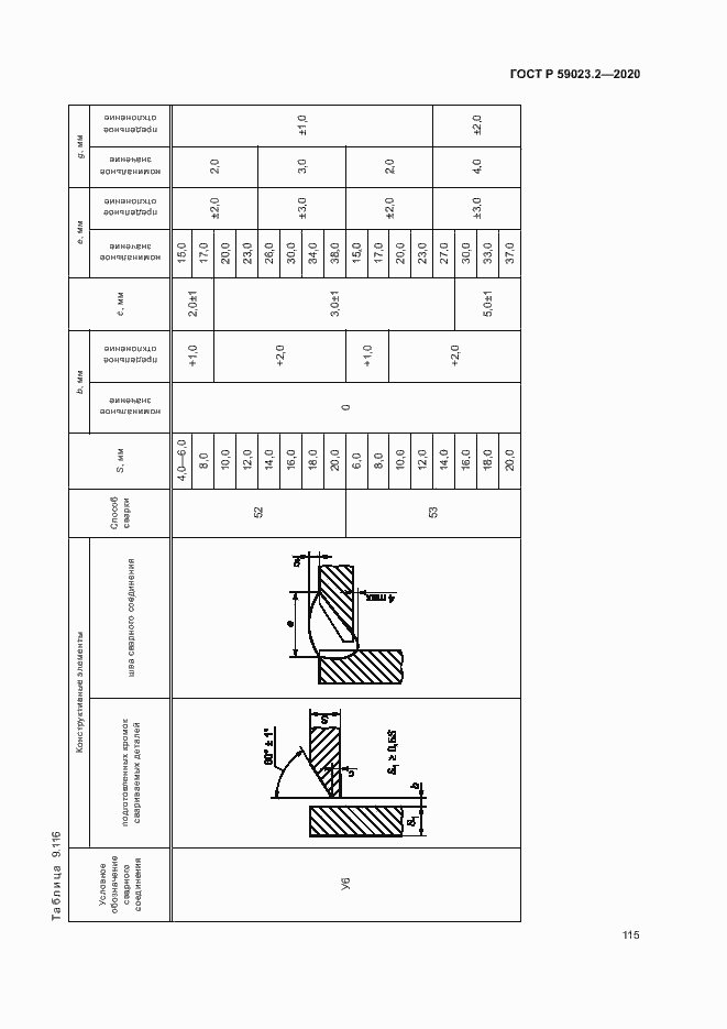
Настоящий стандарт устанавливает типы сварных соединений оборудования и трубопроводов атомных энергетических установок, подпадающих под действие требований федеральных норм и правил в области использования атомной энергии [1] и [2]. Настоящий стандарт предназначен для применения при конструировании (проектировании), изготовлении, монтаже, эксплуатации и ремонте оборудования и трубопроводов атомных энергетических установок
Связи и замены
Заменяющий:
-
Описание стандарта
ГОСТ Р 59023.2-2020 Сварка и наплавка оборудования и трубопроводов атомных энергетических установок. Основные типы сварных соединений
Страницы стандарта





































































































































