ГОСТ Р 59978.1-2022 Конструкции для удаления дымовых газов. Теплотехнический и аэродинамический расчет. Часть 1. Конструкции для удаления дымовых газов от одного источника тепла
ГОСТ Р
Скачать ГОСТ в PDF или DOC бесплатно
Основная информация
Обозначение:
ГОСТ Р 59978.1-2022
Статус:
Действует
Тип:
ГОСТ Р
Название русское:
Конструкции для удаления дымовых газов. Теплотехнический и аэродинамический расчет. Часть 1. Конструкции для удаления дымовых газов от одного источника тепла
Название английское:
Chimneys. Thermal and fluid dynamic calculations. Part 1. Chimneys serving one heating appliance
Даты и сроки
Дата издания:
08-03-22
Дата введения в действие:
01-01-23
Дата завершения срока действия:
-
Применение и описание
Область и условия применения:
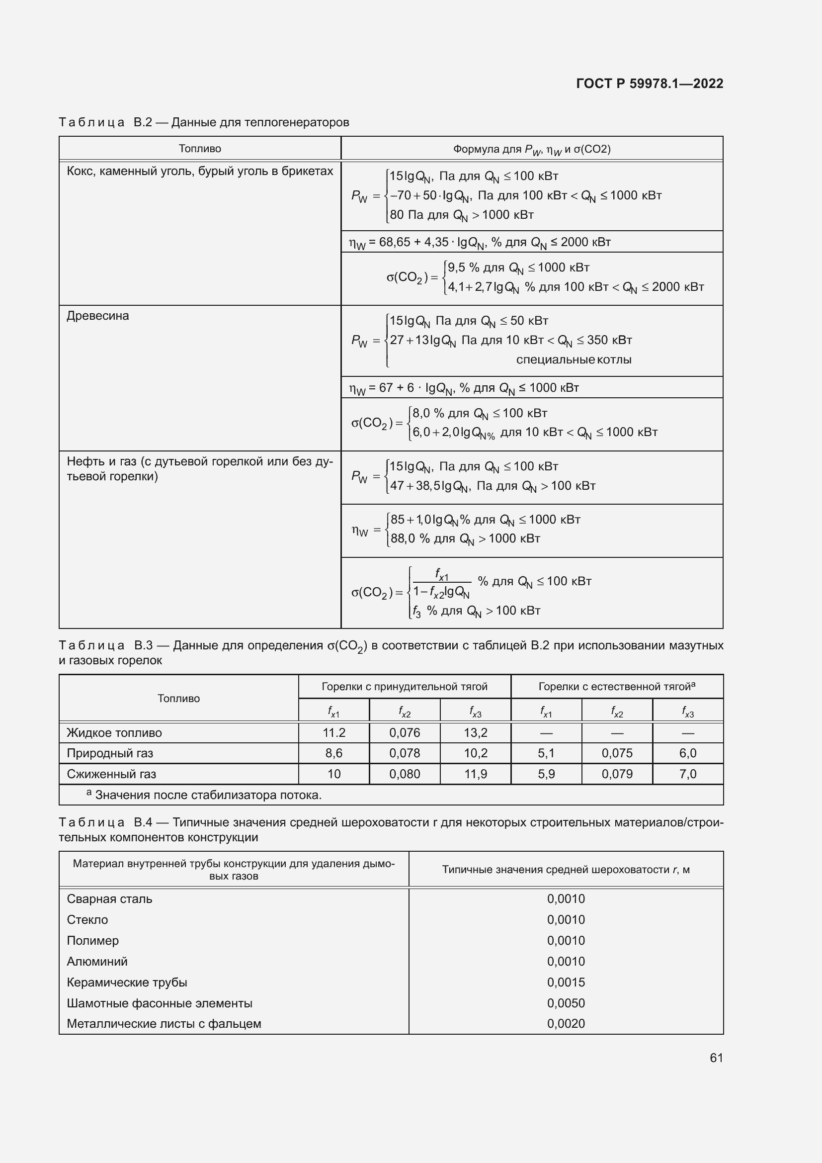
Настоящий стандарт устанавливает методики вычисления теплотехнических и аэродинамических характеристик конструкций для удаления дымовых газов, с присоединенным одним источником тепла. Методики в настоящем стандарте применимы к конструкциям для удаления дымовых газов, работающих под разрежением или с избыточным давлением для сухих или влажных условий эксплуатации. Стандарт применим к конструкциям для удаления дымовых газов с присоединенными источниками тепла при условии, что для топлива известны характеристики дымовых газов, используемые в вычислениях
Связи и замены
Заменяющий:
-
Описание стандарта
ГОСТ Р 59978.1-2022 Конструкции для удаления дымовых газов. Теплотехнический и аэродинамический расчет. Часть 1. Конструкции для удаления дымовых газов от одного источника тепла
Страницы стандарта













































































