ГОСТ Р 50.05.03-2022 Система оценки соответствия в области использования атомной энергии. Оценка соответствия в форме контроля. Унифицированные методики. Ультразвуковой контроль. Измерение толщины монометаллов, биметаллов и антикоррозионных наплавленных поверхностей
ГОСТ Р
Скачать ГОСТ в PDF или DOC бесплатно
Основная информация
Обозначение:
ГОСТ Р 50.05.03-2022
Статус:
Действует
Тип:
ГОСТ Р
Название русское:
Система оценки соответствия в области использования атомной энергии. Оценка соответствия в форме контроля. Унифицированные методики. Ультразвуковой контроль. Измерение толщины монометаллов, биметаллов и антикоррозионных наплавленных поверхностей
Название английское:
Conformity assessment system for the use of nuclear energy. Conformity assessment in the form of examination. Unified procedures. Ultrasonic testing. Thickness measurement of monometals, bimetals and corrosion-resistant cladding surfaces
Даты и сроки
Дата издания:
12-27-22
Дата введения в действие:
01-01-24
Дата завершения срока действия:
-
Применение и описание
Область и условия применения:
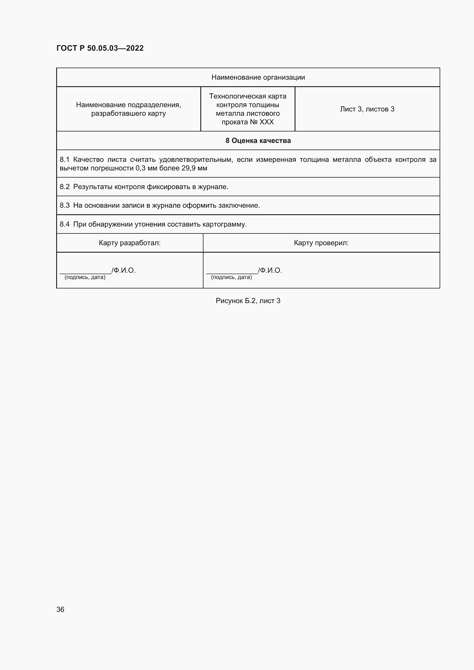
Настоящий стандарт распространяется на оценку соответствия монометаллов, биметаллов и антикоррозионных наплавленных поверхностей (далее – металла продукции в форме контроля (ультразвукового) при ее изготовлении, монтаже, эксплуатации
Связи и замены
Заменяющий:
-
Взамен:
ГОСТ Р 50.05.03-2018
Описание стандарта
ГОСТ Р 50.05.03-2022 Система оценки соответствия в области использования атомной энергии. Оценка соответствия в форме контроля. Унифицированные методики. Ультразвуковой контроль. Измерение толщины монометаллов, биметаллов и антикоррозионных наплавленных поверхностей
Страницы стандарта













































