ГОСТ 6581-75 Материалы электроизоляционные жидкие. Методы электрических испытаний
ГОСТ
Скачать ГОСТ в PDF или DOC бесплатно
Основная информация
Обозначение:
ГОСТ 6581-75
Статус:
Действует
Тип:
ГОСТ
Название русское:
Материалы электроизоляционные жидкие. Методы электрических испытаний
Название английское:
Liquid electrical insulating materials. Electric test methods
Даты и сроки
Дата издания:
04-01-08
Дата введения в действие:
01-01-77
Дата завершения срока действия:
-
Применение и описание
Область и условия применения:
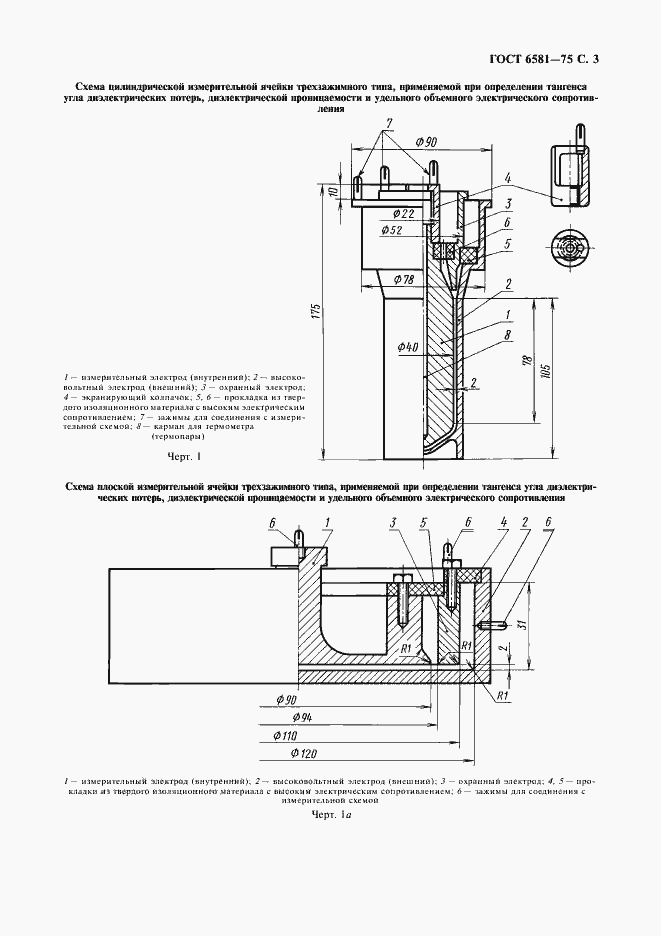
Настоящий стандарт распространяется на жидкие электроизоляционные материалы нефтяного или растительного происхождения и синтетические, находящиеся при температуре испытания в текучем состоянии (вязкость менее 5000х10 в ст. минус 6 м кв./с), и устанавливает для этих материалов методы определения следующих характеристик в диапазоне температур 15 - 250 град. С: - тангенса угла диэлектрических потерь и диэлектрической проницаемости при частоте 50 Гц; - удельного объемного электрического сопротивления при напряжении постоянного тока; - пробивного напряжения при частоте 50 ГЦ
Связи и замены
Заменяющий:
-
Взамен:
ГОСТ 6581-66
Изменения и переиздания
Список изменений:
№1 от (рег. ) «Срок действия продлен» №2 от (рег. ) «Срок действия продлен» №3 от (рег. ) «Срок действия продлен»
Описание стандарта
ГОСТ 6581-75 Материалы электроизоляционные жидкие. Методы электрических испытаний
Страницы стандарта

















