ГОСТ Р 55716-2013 Коммутационная аппаратура высокого напряжения. Общие технические условия
ГОСТ Р
Скачать ГОСТ в PDF или DOC бесплатно
Основная информация
Обозначение:
ГОСТ Р 55716-2013
Статус:
Действует
Тип:
ГОСТ Р
Название русское:
Коммутационная аппаратура высокого напряжения. Общие технические условия
Название английское:
Hhigh-voltage switchgear. General specifications
Даты и сроки
Дата издания:
01-29-15
Дата введения в действие:
01-01-15
Дата завершения срока действия:
-
Применение и описание
Область и условия применения:
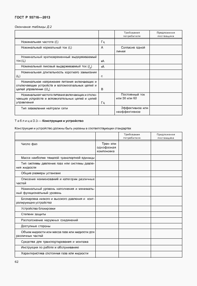
Настоящий стандарт распространяется на коммутационную аппаратуру переменного тока на напряжение свыше 1000 В, предназначенную для внутренней и наружной установки. Настоящий стандарт распространяется на всю коммутационную аппаратуру высокого напряжения, если нет иных указаний в соответствующих стандартах для определенного типа коммутационной аппаратуры
Связи и замены
Заменяющий:
-
Описание стандарта
ГОСТ Р 55716-2013 Коммутационная аппаратура высокого напряжения. Общие технические условия
Страницы стандарта








































































