ГОСТ 30851.2.3-2012 Соединители электрические бытового и аналогичного назначения. Часть 2-3. Дополнительные требования к соединителям степени защиты свыше IPXO и методы испытаний
ГОСТ
Скачать ГОСТ в PDF или DOC бесплатно
Основная информация
Обозначение:
ГОСТ 30851.2.3-2012
Статус:
Заменен
Тип:
ГОСТ
Название русское:
Соединители электрические бытового и аналогичного назначения. Часть 2-3. Дополнительные требования к соединителям степени защиты свыше IPXO и методы испытаний
Название английское:
Appliance couplers for household and similar general purposes. Part 2-3. Particular requirements for appliance couplers with a degree of protection higher than IPXO and methods of tests
Даты и сроки
Дата регистрации:
05-24-12
Дата издания:
10-18-13
Дата введения в действие:
01-01-14
Дата завершения срока действия:
06-01-19
Применение и описание
Область и условия применения:
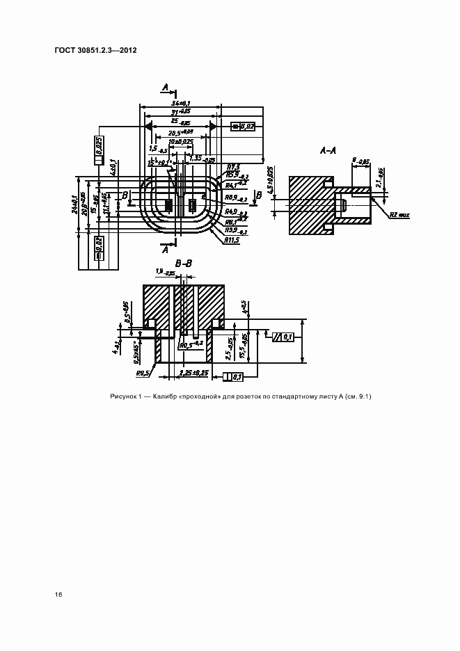
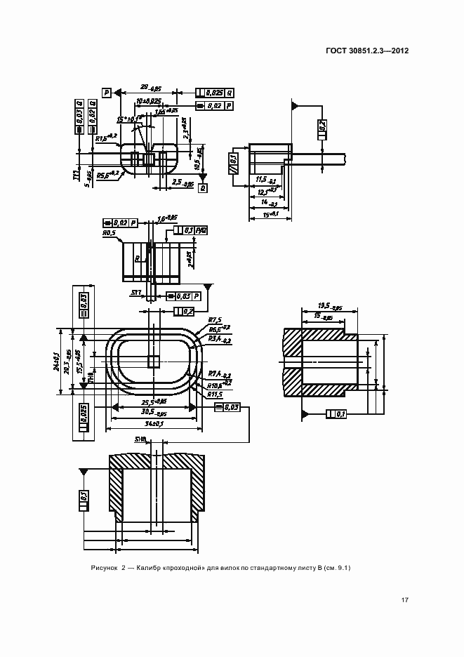
Настоящий стандарт распространяется на двухполюсные соединители (далее - соединители), эксплуатируемые в жестких условиях окружающей среды (например, повышенная влажность, низкая температура) и применяемые в электрических сетях с номинальным напряжением не выше 250 В и переменным током не более 10 А. Соединители предназначены для подключения гибкого кабеля или шнура к переносным электрическим приборам класса защиты ІІ
Связи и замены
Заменяющий:
ГОСТ IEC 60320-2-3-2017
Описание стандарта
ГОСТ 30851.2.3-2012 Соединители электрические бытового и аналогичного назначения. Часть 2-3. Дополнительные требования к соединителям степени защиты свыше IPXO и методы испытаний
Страницы стандарта























