ГОСТ IEC 61095-2015 Контакторы электромеханические бытового и аналогичного назначения
ГОСТ МЭК
Скачать ГОСТ в PDF или DOC бесплатно
Основная информация
Обозначение:
ГОСТ IEC 61095-2015
Статус:
Действует
Тип:
ГОСТ МЭК
Название русское:
Контакторы электромеханические бытового и аналогичного назначения
Название английское:
Electromechanical contactors for household and similar purposes
Даты и сроки
Дата регистрации:
09-29-15
Дата издания:
08-15-16
Дата введения в действие:
03-01-17
Дата завершения срока действия:
-
Применение и описание
Область и условия применения:
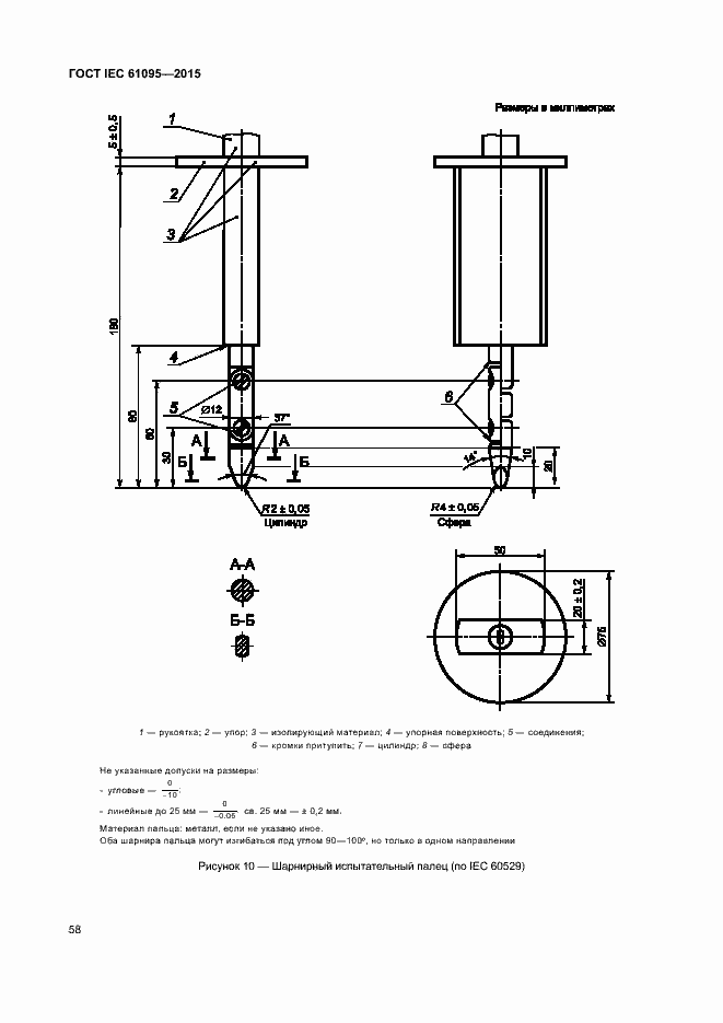
Настоящий стандарт распространяется на контакторы с воздушным зазором между контактами бытового и аналогичного назначения для цепей с номинальным напряжением не более 440 В переменного тока (между фазами) и с номинальным током не более 63 А для категории применения АС–7а и 32 А для категории применения АС–7b и значением номинального условного тока короткого замыкания не более 6 кА. Контакторы, рассматриваемые в настоящем стандарте, обычно не предназначены для отключения токов короткого замыкания. Защита от коротких замыканий должна обеспечиваться электроустановкой, в которой применяются контакторы
Связи и замены
Заменяющий:
-
Описание стандарта
ГОСТ IEC 61095-2015 Контакторы электромеханические бытового и аналогичного назначения
Страницы стандарта




































































































