ГОСТы >
29.120.50 Плавкие предохранители и другие защитные устройства при перегрузках >
ГОСТ IEC 62020-2017
ГОСТ IEC 62020-2017 Электрооборудование вспомогательное. Устройства контроля дифференциального тока (RCMs) бытового и аналогичного назначения
ГОСТ МЭК
Скачать ГОСТ в PDF или DOC бесплатно
Основная информация
Обозначение:
ГОСТ IEC 62020-2017
Статус:
Действует
Тип:
ГОСТ МЭК
Название русское:
Электрооборудование вспомогательное. Устройства контроля дифференциального тока (RCMs) бытового и аналогичного назначения
Название английское:
Electrical accessories. Residual current monitors for household аnd similar uses (RCMs)
Даты и сроки
Дата регистрации:
11-30-17
Дата издания:
08-17-22
Дата введения в действие:
01-01-23
Дата завершения срока действия:
-
Применение и описание
Область и условия применения:
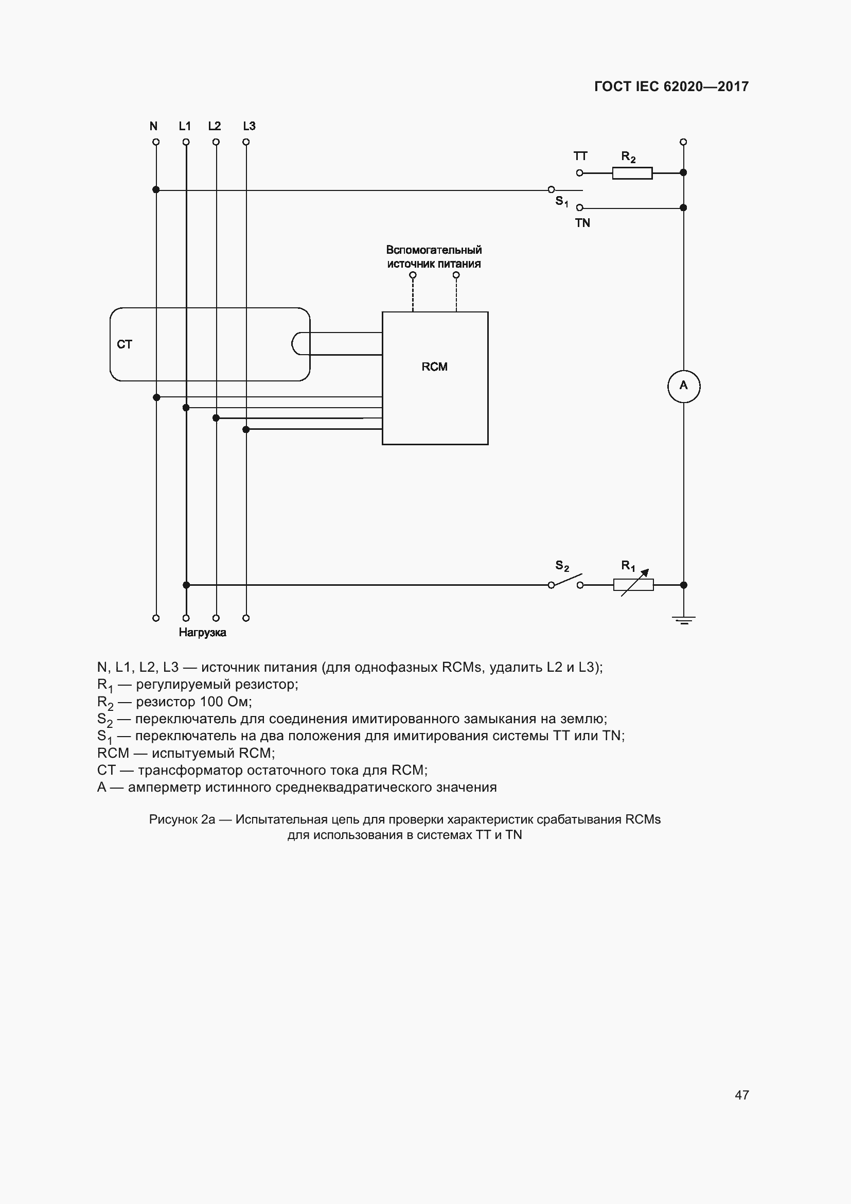
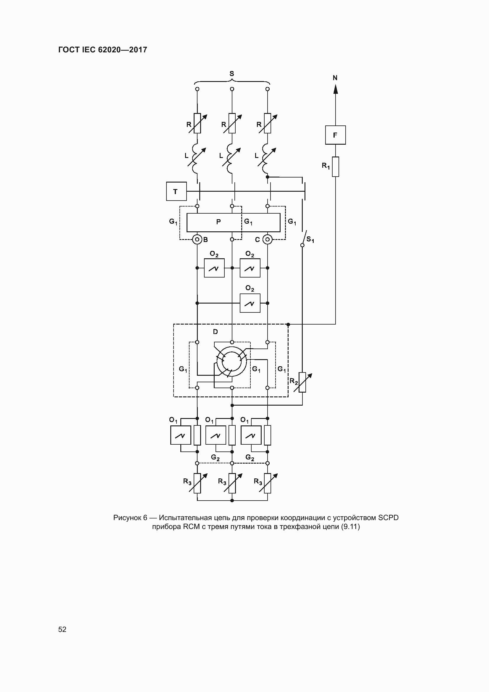
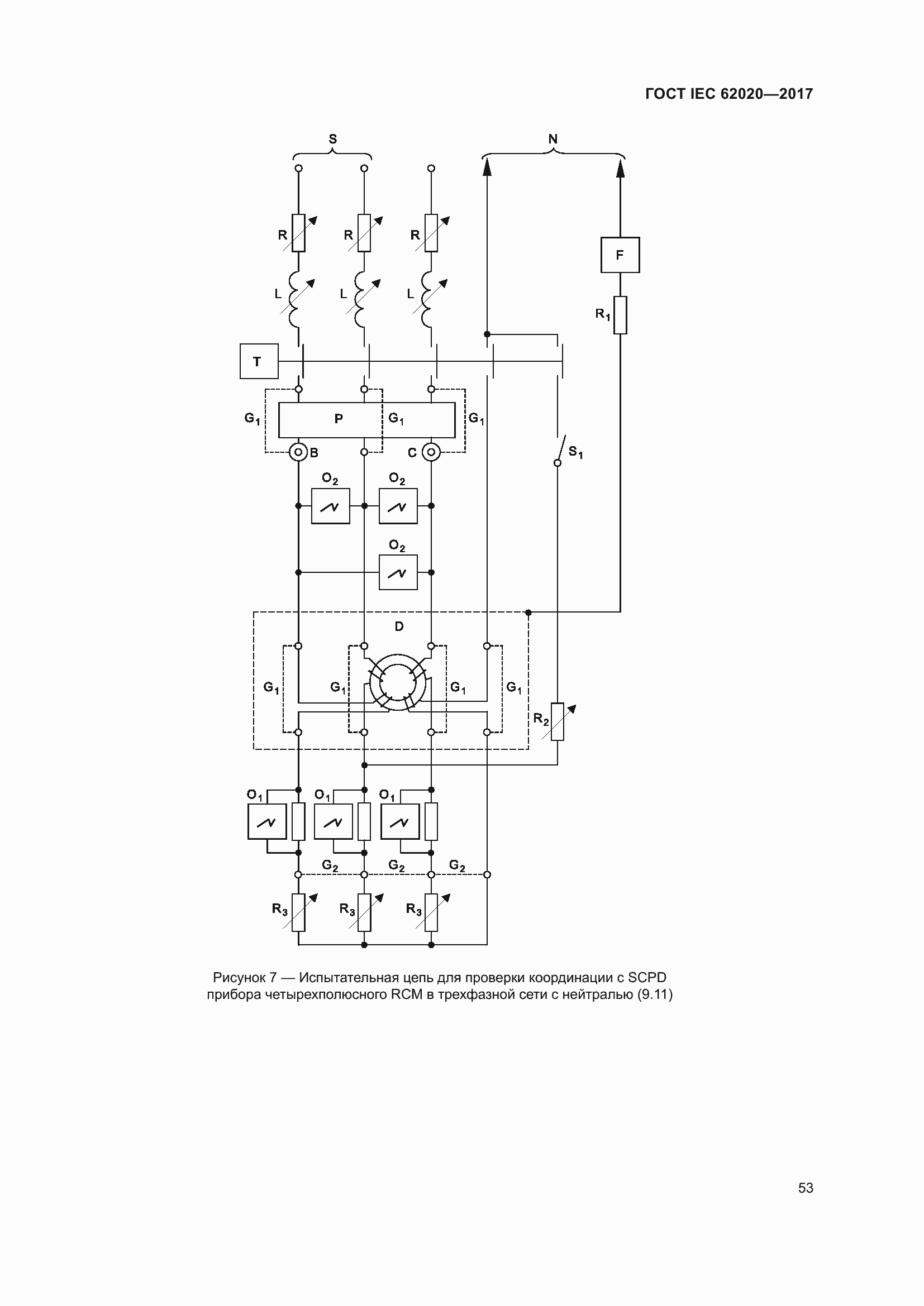
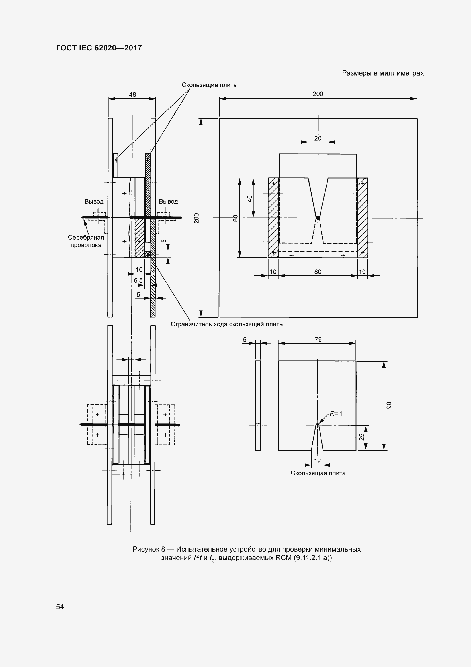
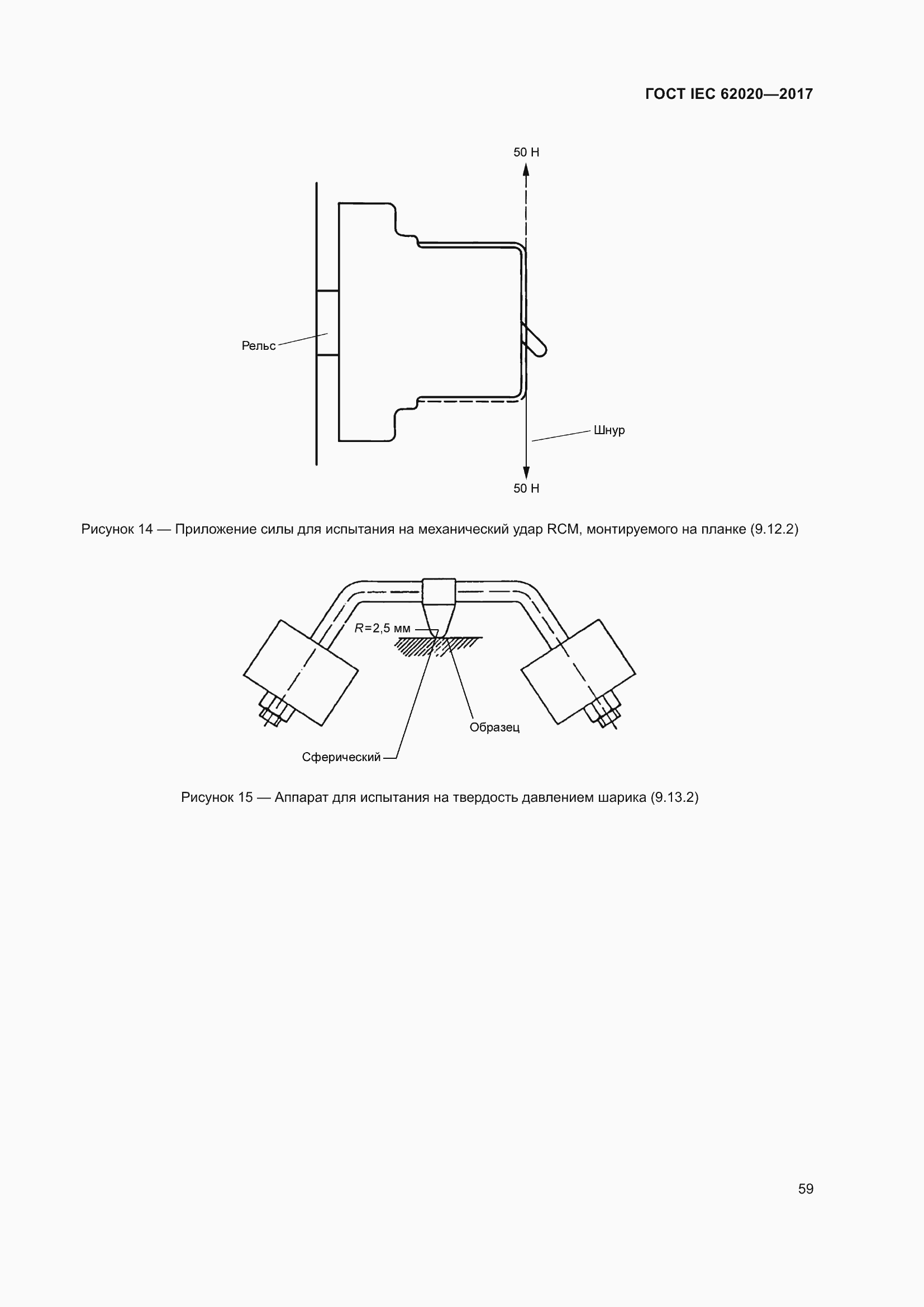
Настоящий стандарт распространяется на устройства контроля дифференциального тока с номинальным напряжением не более 440 В и номинальным током не более 125 A бытового и аналогичного назначения. Данные приборы предназначены для контрольного измерения остаточного тока установки и отключения цепи, если остаточный ток между частью установки, находящейся под напряжением, и открытой токопроводящей частью или землей превышает заданное значение
Связи и замены
Заменяющий:
-
Описание стандарта
ГОСТ IEC 62020-2017 Электрооборудование вспомогательное. Устройства контроля дифференциального тока (RCMs) бытового и аналогичного назначения
Страницы стандарта

















































































