ГОСТ Р 70366-2022 Защитное заземление при работах на воздушных линиях электропередачи высокого напряжения. Технические требования
ГОСТ Р
Скачать ГОСТ в PDF или DOC бесплатно
Основная информация
Обозначение:
ГОСТ Р 70366-2022
Статус:
Действует
Тип:
ГОСТ Р
Название русское:
Защитное заземление при работах на воздушных линиях электропередачи высокого напряжения. Технические требования
Название английское:
Protective grounding when working on high-voltage overhead power lines. Technical requirements
Даты и сроки
Дата издания:
10-11-22
Дата введения в действие:
12-01-22
Дата завершения срока действия:
-
Применение и описание
Область и условия применения:
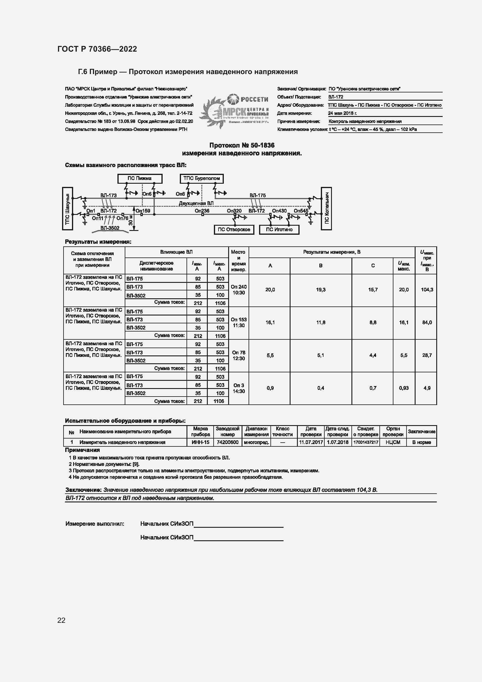
Настоящий стандарт распространяется на способы и устройство защитного заземления на рабочих местах, используемые при техническом обслуживании, ремонте, техническом перевооружении, модернизации и измерениях на действующих воздушных линиях электропередачи (далее - ВЛ) переменного тока напряжением выше 1 кВ, с любым количеством цепей. Настоящий стандарт устанавливает требования к способам заземления, заземляющим устройствам, переносным заземляющим проводникам и к методам инструментальной проверки (методам измерений) эффективности защитного заземления
Связи и замены
Заменяющий:
-
Описание стандарта
ГОСТ Р 70366-2022 Защитное заземление при работах на воздушных линиях электропередачи высокого напряжения. Технические требования
Страницы стандарта































