ГОСТы >
29.130.20 Низковольтная коммутационная аппаратура и аппаратура управления >
ГОСТ IEC 60715-2021
ГОСТ IEC 60715-2021 Аппаратура распределения и управления низковольтная. Установка и крепление на направляющих электрических аппаратов в устройствах распределения и управления
ГОСТ МЭК
Скачать ГОСТ в PDF или DOC бесплатно
Основная информация
Обозначение:
ГОСТ IEC 60715-2021
Статус:
Действует
Тип:
ГОСТ МЭК
Название русское:
Аппаратура распределения и управления низковольтная. Установка и крепление на направляющих электрических аппаратов в устройствах распределения и управления
Название английское:
Low-voltage switchgear and controlgear. Mounting on rails for mechanical support of electrical devices in switchgear and controlgear installations
Даты и сроки
Дата регистрации:
09-30-21
Дата издания:
11-17-21
Дата введения в действие:
03-01-22
Дата завершения срока действия:
-
Применение и описание
Область и условия применения:
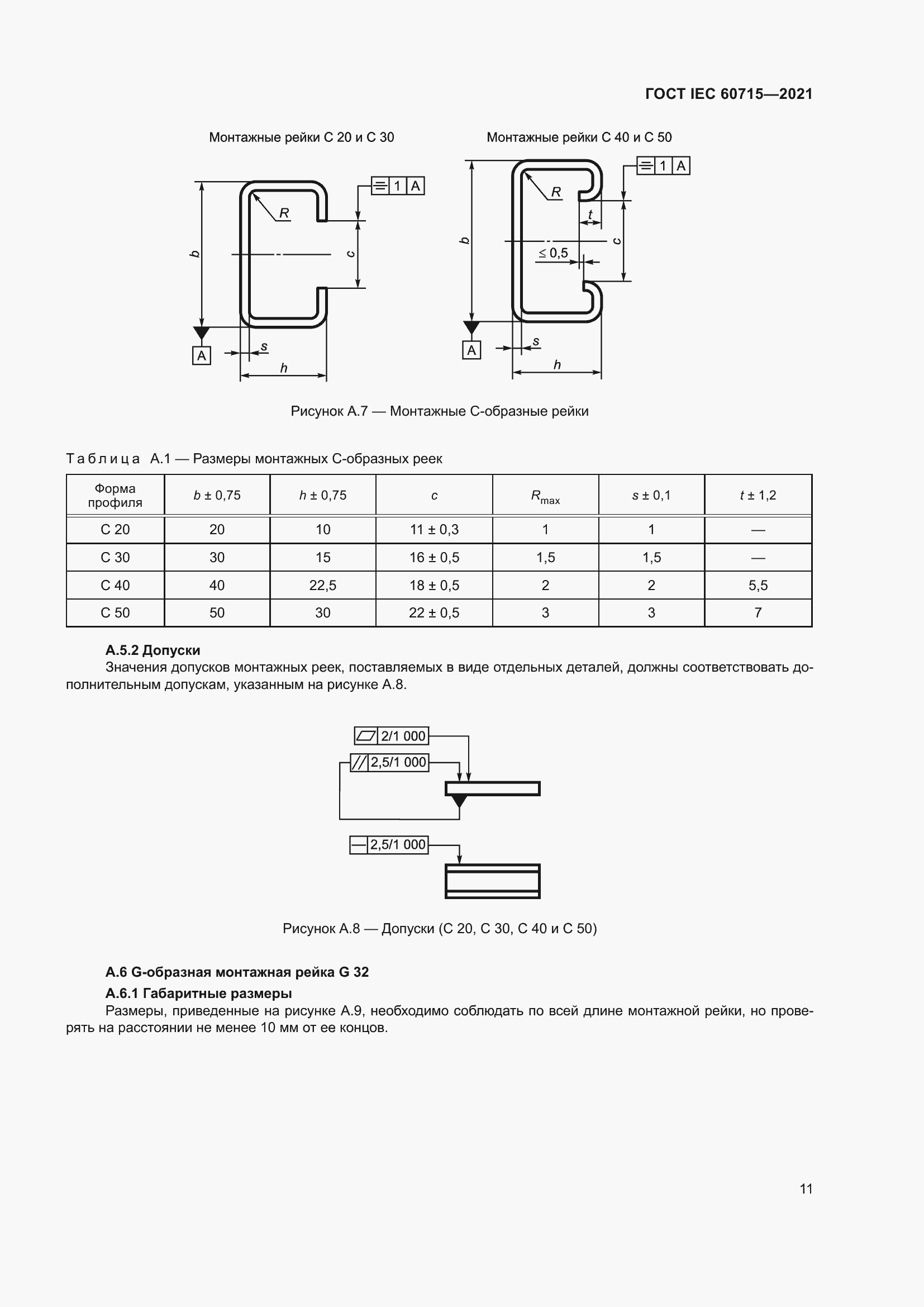
Настоящий стандарт устанавливает размеры и функциональные требования к монтажу на направляющих различных электрических аппаратов внутри низковольтных комплектных устройств распределения и управления. Цель настоящего стандарта – установить размеры, необходимые при проектировании направляющих и оборудования. В настоящем стандарте описаны следующие профили направляющих: - Т-образный профиль (TH); - С-образный профиль (С); - G-образный профиль (G)
Связи и замены
Заменяющий:
-
Взамен:
ГОСТ IEC 60715-2013
Описание стандарта
ГОСТ IEC 60715-2021 Аппаратура распределения и управления низковольтная. Установка и крепление на направляющих электрических аппаратов в устройствах распределения и управления
Страницы стандарта



























