ГОСТы >
29.130.10 Высоковольтное оборудование, коммутационная аппаратура и аппаратура управления >
ГОСТ Р 55190-2022
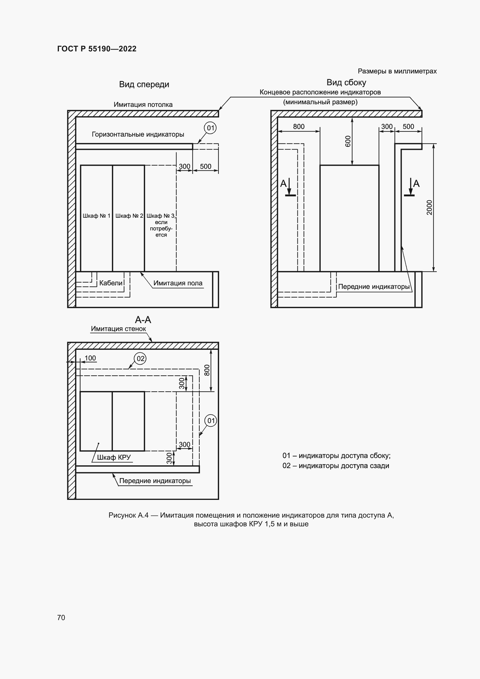
ГОСТ Р 55190-2022 Устройства комплектные распределительные в металлической оболочке (КРУ) на номинальное напряжение до 35 кВ. Общие технические условия
ГОСТ Р
Скачать ГОСТ в PDF или DOC бесплатно
Основная информация
Обозначение:
ГОСТ Р 55190-2022
Статус:
Действует
Тип:
ГОСТ Р
Название русское:
Устройства комплектные распределительные в металлической оболочке (КРУ) на номинальное напряжение до 35 кВ. Общие технические условия
Название английское:
Metal-clad switchgear for rated voltages up to 35 kV. General specifications
Даты и сроки
Дата издания:
12-28-22
Дата введения в действие:
01-01-23
Дата завершения срока действия:
-
Применение и описание
Область и условия применения:
Настоящий стандарт распространяется на комплектные распределительные устройства в металлической оболочке (КРУ) переменного тока с частотой 50 и 60 Гц на номинальные напряжения до 35 кВ включительно. Оболочки могут иметь фиксированные и съемные компоненты и могут быть заполнены жидкостью или газом для обеспечения изоляции. Настоящий стандарт распространяется на КРУ с газонаполненными отсеками, расчетное избыточное давление которых не превышает 300 кПа
Связи и замены
Заменяющий:
-
Взамен:
ГОСТ Р 55190-2012
Описание стандарта
ГОСТ Р 55190-2022 Устройства комплектные распределительные в металлической оболочке (КРУ) на номинальное напряжение до 35 кВ. Общие технические условия
Страницы стандарта






















































































Приложение №1: Поправка к ГОСТ Р 55190-2022 Обозначение: Поправка к ГОСТ Р 55190-2022 Дата введения в действие: 21.07.2023
