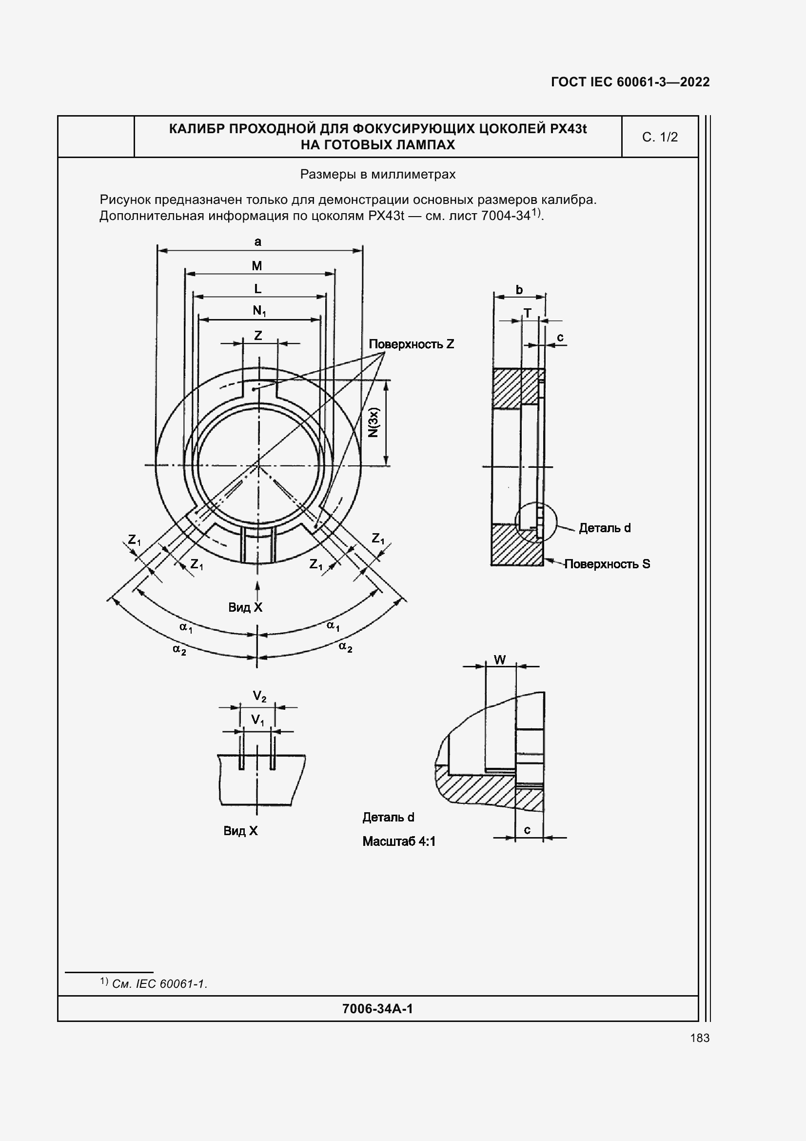
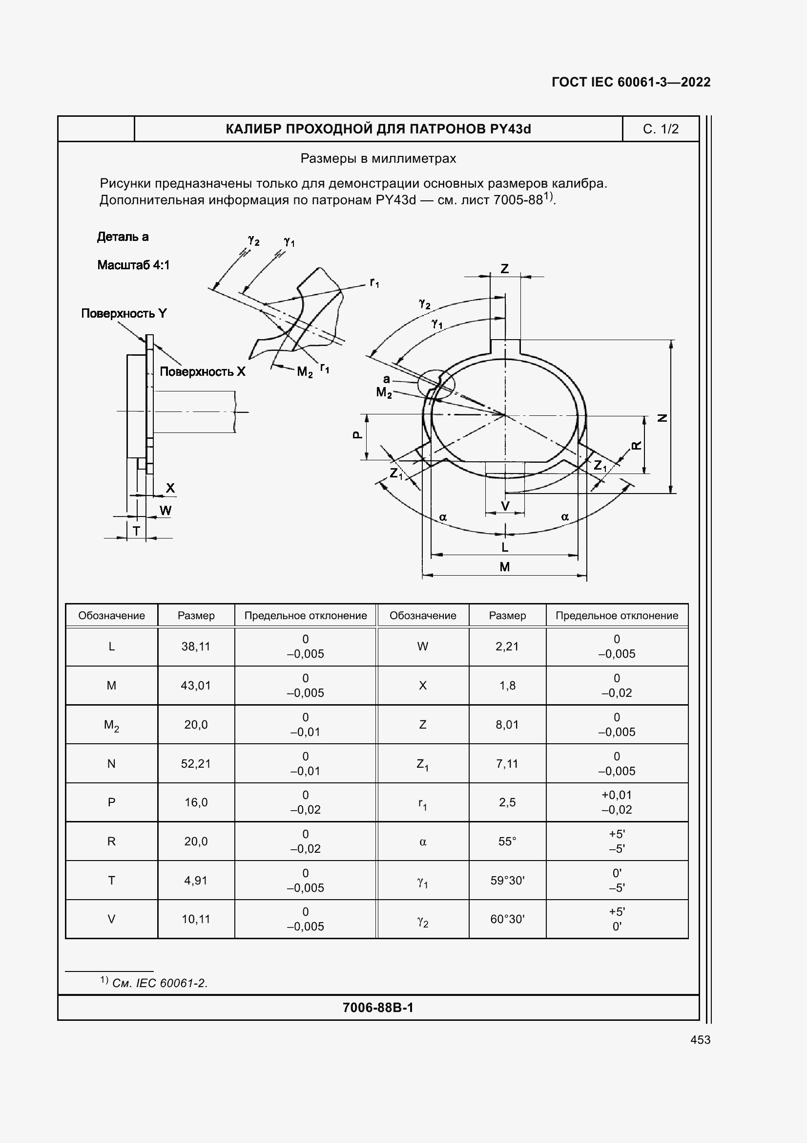
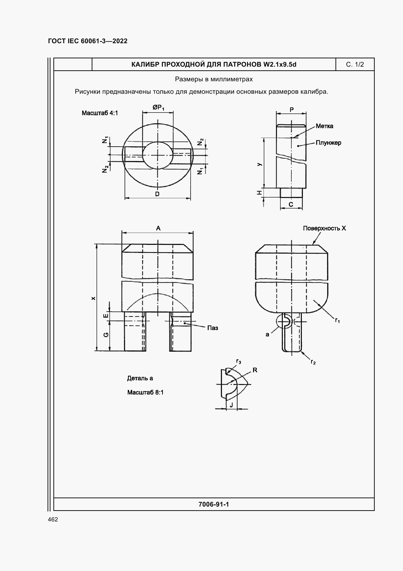
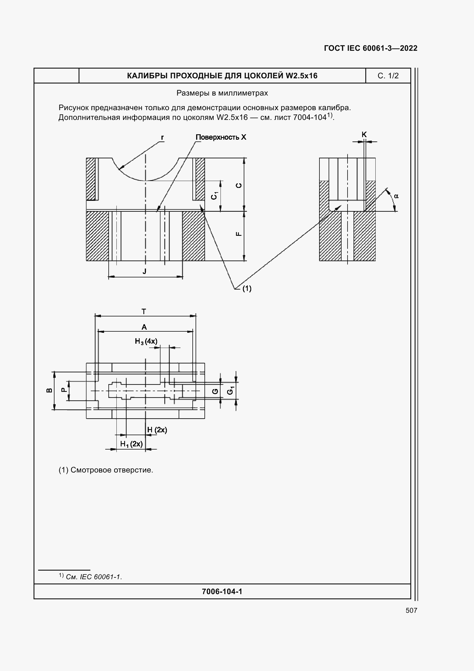
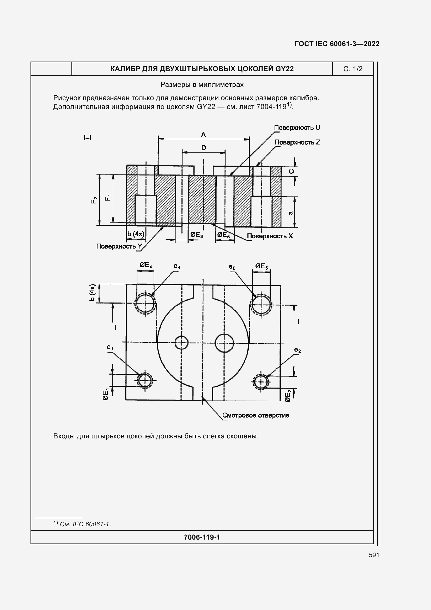
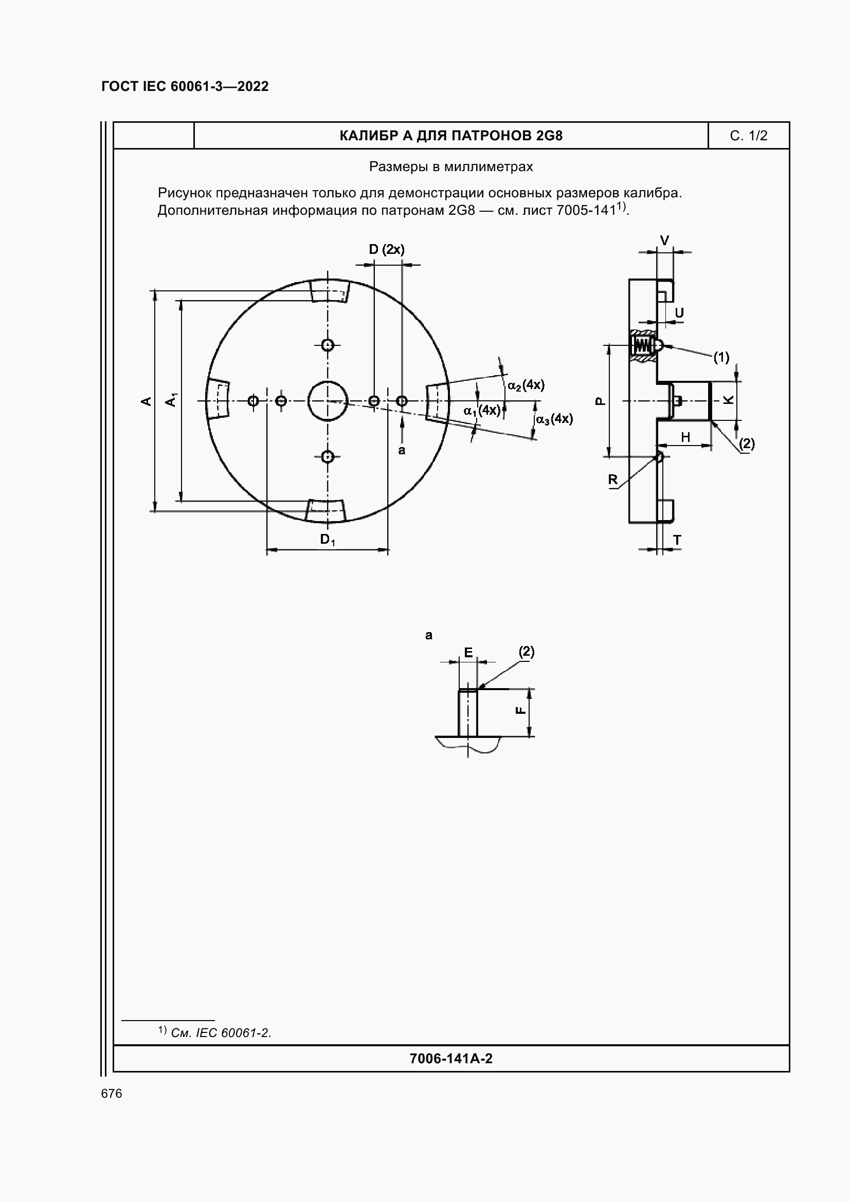
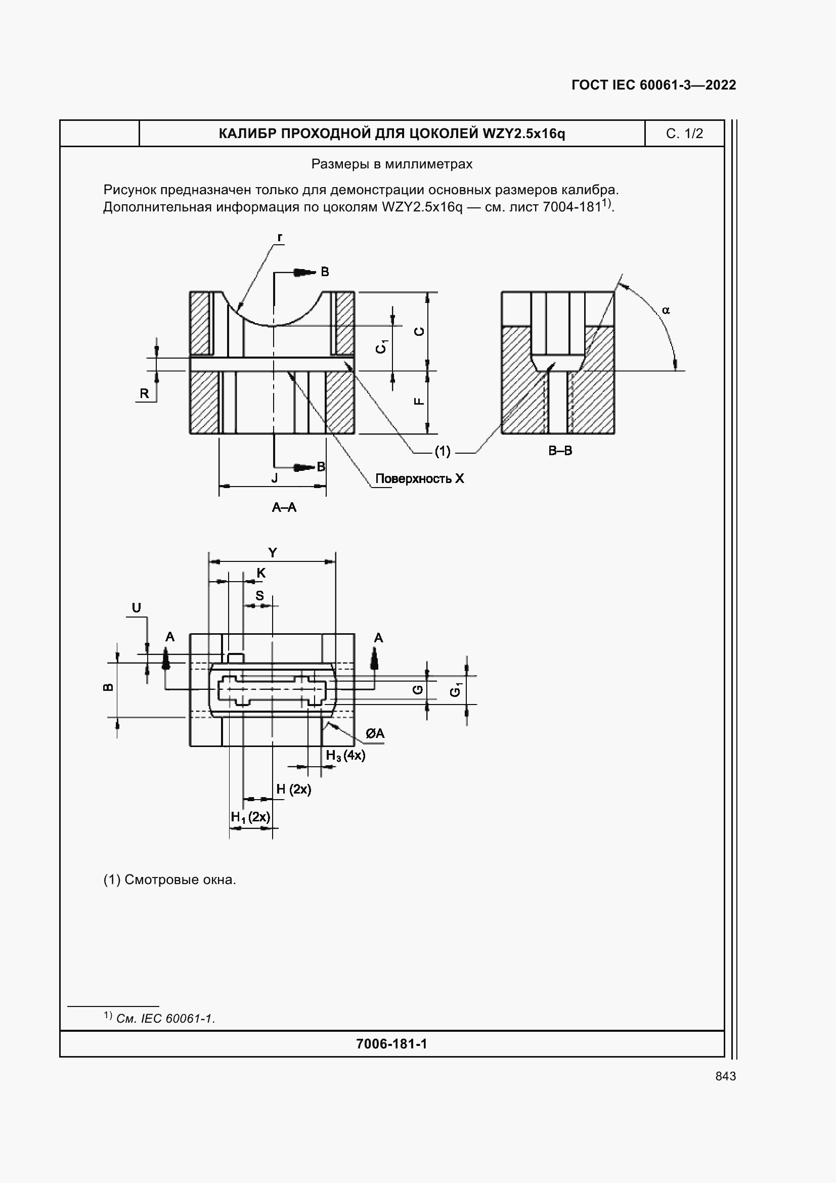
ГОСТ IEC 60061-3-2022 Цоколи и патроны для источников света с калибрами для проверки взаимозаменяемости и безопасности. Часть 3. Калибры
ГОСТ МЭК
Скачать ГОСТ в PDF или DOC бесплатно
Основная информация
Обозначение:
ГОСТ IEC 60061-3-2022
Статус:
Действует
Тип:
ГОСТ МЭК
Название русское:
Цоколи и патроны для источников света с калибрами для проверки взаимозаменяемости и безопасности. Часть 3. Калибры
Название английское:
Lamp caps and holders for light sources together with gauges for the control of interchangeability and safety. Part 3. Gauges
Даты и сроки
Дата регистрации:
08-31-22
Дата издания:
11-17-22
Дата введения в действие:
09-01-23
Дата завершения срока действия:
-
Связи и замены
Заменяющий:
-
Описание стандарта
ГОСТ IEC 60061-3-2022 Цоколи и патроны для источников света с калибрами для проверки взаимозаменяемости и безопасности. Часть 3. Калибры
Страницы стандарта









































































































































































































































































































































































































































































































































































































































































































































































































































































































































