ГОСТ 30030-93 Трансформаторы разделительные и безопасные разделительные трансформаторы. Технические требования
ГОСТ
Скачать ГОСТ в PDF или DOC бесплатно
Основная информация
Обозначение:
ГОСТ 30030-93
Статус:
Действует
Тип:
ГОСТ
Название русское:
Трансформаторы разделительные и безопасные разделительные трансформаторы. Технические требования
Название английское:
Isolating transformers and safety isolating transformers. Technical requirements
Даты и сроки
Дата регистрации:
10-21-93
Дата издания:
04-06-98
Дата введения в действие:
01-01-98
Дата завершения срока действия:
-
Применение и описание
Область и условия применения:
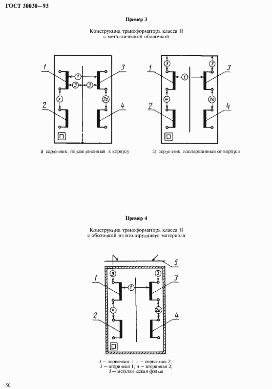
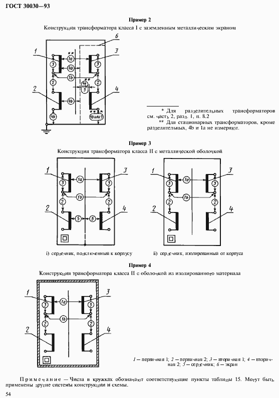
Настоящий стандарт устанавливает нормы, правила и методы испытаний, являющиеся общими и дополнительными для всех разделительных трансформаторов
Связи и замены
Заменяющий:
-
Описание стандарта
ГОСТ 30030-93 Трансформаторы разделительные и безопасные разделительные трансформаторы. Технические требования
Страницы стандарта
























































































