ГОСТ Р МЭК 60952-2-2017 Батареи авиационные. Часть 2. Конструкция и требования к конструкции
ГОСТ Р МЭК
Скачать ГОСТ в PDF или DOC бесплатно
Основная информация
Обозначение:
ГОСТ Р МЭК 60952-2-2017
Статус:
Действует
Тип:
ГОСТ Р МЭК
Название русское:
Батареи авиационные. Часть 2. Конструкция и требования к конструкции
Название английское:
Aircraft batteries. Part 2. Design and construction requirements
Даты и сроки
Дата издания:
11-17-17
Дата введения в действие:
10-01-18
Дата завершения срока действия:
-
Применение и описание
Область и условия применения:
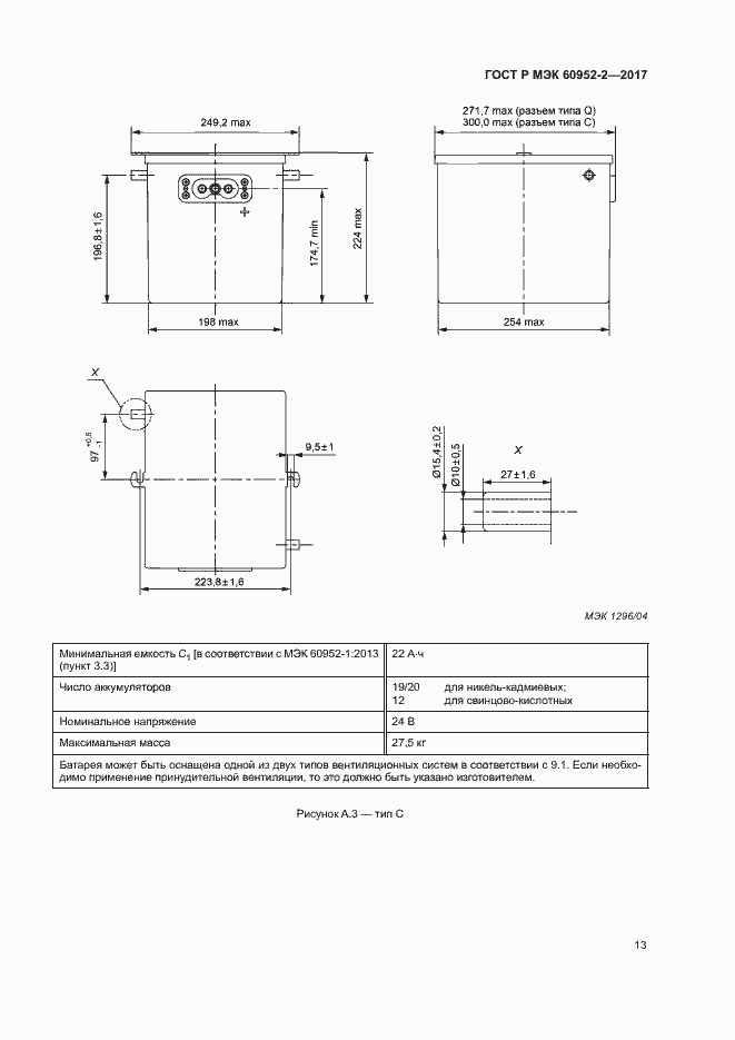
Настоящий стандарт определяет конструкцию, требования к конструкции и материалам никель-кадмиевых и свинцово-кислотных авиационных аккумуляторных батарей (БАА), состоящих из вентилируемых или клапанно-регулируемых аккумуляторов или моноблоков. Батареи используются как для приложений общего назначения, так и для специализированных приложений. Конкретные положения, рассматриваемые настоящем стандарте, служат для установления требований к качеству для соответствия требованиям раздела 3 МЭК 60952-1:2013. Предпочтительный диапазон размеров авиационных батарей приведен в приложении А, но настоящий стандарт может быть применен и к батареям других размеров, устройства и номиналов. Для конкретных приложений может быть предусмотрены другие требования к конструкции. Они будут применяться в дополнение к требованиям настоящего стандарта и будут охватываться конкретными документами. Дополнительные сведения могут быть затребованы другими организациями (национальными органами по стандартизации, AECMA, SAE и др.). Настоящий стандарт может быть использован в качестве основы для разработки методов испытаний для получения необходимых данных
Связи и замены
Заменяющий:
-
Взамен:
ГОСТ Р МЭК 952-2-93
Описание стандарта
ГОСТ Р МЭК 60952-2-2017 Батареи авиационные. Часть 2. Конструкция и требования к конструкции
Страницы стандарта


































