ГОСТ Р МЭК 60297-3-101-2006 Конструкции несущие базовые радиоэлектронных средств. Блочные каркасы и связанные с ними вставные блоки. Размеры конструкций серии 482,6 мм (19 дюймов)
ГОСТ Р МЭК
Скачать ГОСТ в PDF или DOC бесплатно
Основная информация
Обозначение:
ГОСТ Р МЭК 60297-3-101-2006
Статус:
Действует
Тип:
ГОСТ Р МЭК
Название русское:
Конструкции несущие базовые радиоэлектронных средств. Блочные каркасы и связанные с ними вставные блоки. Размеры конструкций серии 482,6 мм (19 дюймов)
Название английское:
Mechanical structures for radio-electronic equipment. Subracks and associated plug-in units. Dimensions of mechanical structures of the 482,6 mm (19 in) series
Даты и сроки
Дата издания:
07-31-07
Дата введения в действие:
01-01-08
Дата завершения срока действия:
-
Применение и описание
Область и условия применения:
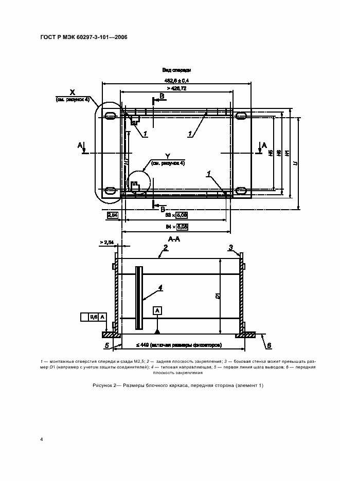
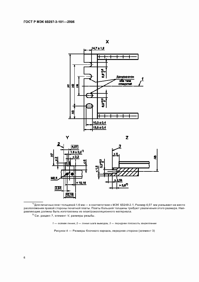
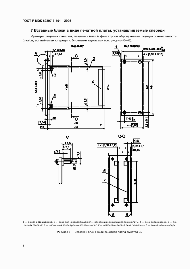
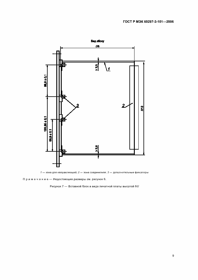
Настоящий стандарт распространяется на основные размеры модульного ряда блочных каркасов и связанных с ними вставных блоков в соответствии со стандартами серии МЭК 60297. Настоящий стандарт предназначен для определения размеров, обеспечивающих размерную взаимозаменяемость блочных каркасов и вставных блоков. Размеры применяемых разъемов ограничены только установочными размерами
Связи и замены
Заменяющий:
-
Описание стандарта
ГОСТ Р МЭК 60297-3-101-2006 Конструкции несущие базовые радиоэлектронных средств. Блочные каркасы и связанные с ними вставные блоки. Размеры конструкций серии 482,6 мм (19 дюймов)
Страницы стандарта























